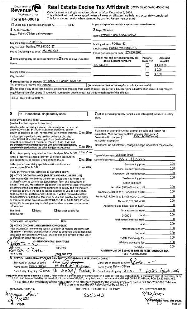
Property
Account |
Property ID: | 6466 | Abbreviated Legal Description: | Lot 1 Block 1 Hills First Addition to Hartline |
Parcel # / Geo ID: | 030647000 | Agent Code: | |
Type: | Real | | |
Tax Area: | 0011 - HARTLINE AREA | Land Use Code | - |
Open Space: | N | DFL | N |
Historic Property: | N | Remodel Property: | N |
Multi-Family Redevelopment: | N | | |
Township: | | Section: | |
Range: | | Legal Acres: | 0.0000 |
Location |
Address: | 981 KELLEY ST HARTLINE, | Mapsco: | |
Neighborhood: | 210100 | Map ID: | |
Neighborhood CD: | 3419 |
Owner |
Name: | O'Brien, Patrick | Owner ID: | 199243 |
Mailing Address: | PO Box 187 Hartline, WA 99135-0187 | % Ownership: | 100.0000000000% |
| | Exemptions: | |
Taxes and Assessment Details
Values
(+) Improvement Homesite Value: | + | N/A | |
(+) Improvement Non-Homesite Value: | + | N/A | |
(+) Land Homesite Value: | + | N/A | |
(+) Land Non-Homesite Value: | + | N/A | Ag / Timber Use Value |
(+) Curr Use (HS): | + | N/A | N/A |
(+) Curr Use (NHS): | + | N/A | N/A |
| | -------------------------- | |
(=) Market Value: | = | N/A | |
(–) Productivity Loss: | – | N/A | |
| | -------------------------- | |
(=) Subtotal: | = | N/A | |
(+) Senior Appraised Value: | + | N/A | |
(+) Non-Senior Appraised Value: | + | N/A | |
| | -------------------------- | |
(=) Total Appraised Value: | = | N/A | |
(–) Senior Exemption Loss: | – | N/A | |
(–) Exemption Loss: | – | N/A | |
| | -------------------------- | |
(=) Taxable Value: | = | N/A | |
Taxing Jurisdiction
Owner: | O'Brien, Patrick | | |
% Ownership: | 100.0000000000% | | |
Total Value: | N/A | | |
Tax Area: | 0011 - HARTLINE AREA |
HARTLINE | Hartline | N/A | N/A | N/A | N/A | | |
CTYCE | County Current Expense | N/A | N/A | N/A | N/A | | |
MHEALTH | Mental Health | N/A | N/A | N/A | N/A | | |
VETERANS | Veterans Relief Fund | N/A | N/A | N/A | N/A | | |
FIRE06 | Fire 06 | N/A | N/A | N/A | N/A | | |
HOS06 | Hospital 06 | N/A | N/A | N/A | N/A | | |
HOS06BD | Hospital 06 - Bond | N/A | N/A | N/A | N/A | | |
PORT05 | Port 05 | N/A | N/A | N/A | N/A | | |
SD151 | School 151 Coulee/Hartline | N/A | N/A | N/A | N/A | | |
SD151BD | School 151 Coulee/Hartline - Bond | N/A | N/A | N/A | N/A | | |
STATE1 | State School - Pt 1 | N/A | N/A | N/A | N/A | | |
STATE2 | State School - Pt 2 | N/A | N/A | N/A | N/A | | |
STATEREF | State School Refund | N/A | N/A | N/A | N/A | | |
CEM3 | Cemetery 3 | N/A | N/A | N/A | N/A | | |
| Total Tax Rate: | N/A | | | | | |
| | | | Taxes w/Current Exemptions: | N/A | | |
| | | | Taxes w/o Exemptions: | N/A | | |
Improvement / Building
Sketch
No sketches available for this property. |
Property Image
Land
1 | HRES | HRes | 0.0000 | 0.00 | 0.00 | 0.00 | 7.00 | N/A | N/A |
Roll Value History
2025 | N/A | N/A | N/A | N/A | N/A |
2024 | $0 | $4,778 | $0 | $4,778 | $4,778 |
2023 | $0 | $4,778 | $0 | $4,778 | $4,778 |
2022 | $0 | $4,778 | $0 | $4,778 | $4,778 |
2021 | $500 | $11,753 | $0 | $12,253 | $12,253 |
2020 | $500 | $11,753 | $0 | $12,253 | $12,253 |
2019 | $500 | $11,753 | $0 | $12,253 | $12,253 |
2018 | $500 | $11,753 | $0 | $12,253 | $12,253 |
2017 | $500 | $11,755 | $0 | $0 | $0 |
2016 | $500 | $18,450 | $0 | $0 | $0 |
2015 | $500 | $8,065 | $0 | $0 | $0 |
2014 | $500 | $8,065 | $0 | $0 | $0 |
2013 | $500 | $8,065 | $0 | $0 | $0 |
2012 | $9,610 | $8,065 | $0 | $0 | $0 |
2011 | $10,215 | $8,065 | $0 | $0 | $0 |
Deed and Sales History
1 | 06/13/2025 | QCD/BLA | Quit Claim Deed/Boundary Line Adjustment | O'Brien, Patrick | O'Brien, Patrick | | | $0.00 | 265543 | 1513660 |
2 | 04/12/2011 | SWD | Statutory Warranty Deed | Larson, Joe | O'Brien, Patrick | | | $7,100.00 | 207446 | 1285777 |
3 | 12/08/2005 | TREA | TREA | Grant County Treasurer | LARSON, JOE | | | $15,500.00 | 200518396 | V: 0 Pg 0 |
4 | 08/01/1983 | LC | LC | | HOOD, CAROL K | | | $20,000.00 | 198309402 | V: 436 Pg 475 |
  | |
5 | 04/01/1981 | QC | QC | | Unknown buyer | | | $1.00 | 198108697 | V: 358 Pg 597 |
6 | 05/01/1973 | Warranty D | Warranty D | | BARNES, E ROSS/JUDY S | | | $3,500.00 | 197305920 | V: 128 Pg 170 |
Payout Agreement
No payout information available.. |