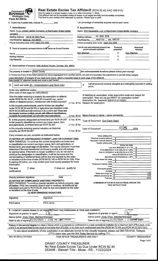
1 | 11/15/2024 | QCD | Quit Claim Deed | PIA LLC | RFC Renewable LLC | | | $0.00 | 263448 | 1506115 |
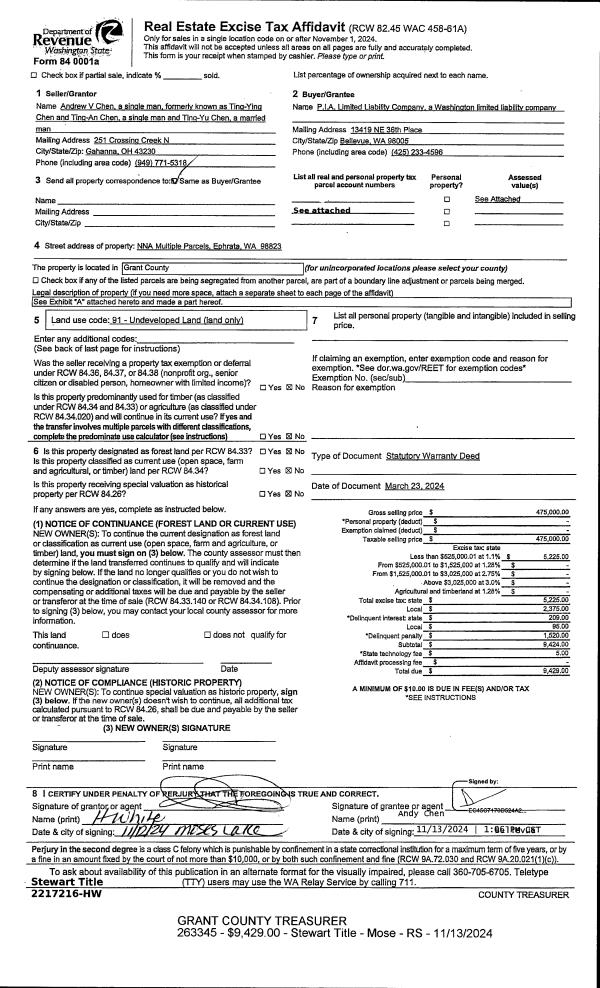
2 | 03/23/2024 | SWD | Statutory Warranty Deed | Chen Etal, Ting-Yu | PIA LLC | | | $475,000.00 | 263345 | 1505739 |
  | |
3 | 03/23/1990 | WFD | Warranty Fulfillment Deed | Moses Lake Development Corp | T D Investment, Inc | | | | 0 | Bk 769 Pg 112 |
4 | 01/16/1990 | Quit Claim | Quit Claim | CHEN, CHIN-HUEI/SHUE-GEAN | CHEN ETAL, TING-YU | | | $0.00 | 199011466 | V: 755 Pg 166 |
5 | 11/13/1989 | SWD | Statutory Warranty Deed | T D INVESTMENT INC | CHEN GUARDIANS, CHIN-HUEI/SHUE-GEAN | | | $0.00 | 198911411 | V: 746 Pg 527 |
6 | 10/16/1989 | LC | LC | Moses Lake Development Corp | T D Investment, Inc | | | $584,000.00 | 113841 | Bk 743 Pg 354 |
  | |
7 | 10/01/1984 | QC | QC | | Unknown buyer | | | $1.00 | 198409828 | V: 489 Pg 388 |
8 | 10/01/1983 | AF | AF | | Unknown buyer | | | $1.00 | 198309498 | V: 446 Pg 563 |
9 | 06/01/1982 | LC | LC | | JOHNSON, ALBERT Q/JETTA J | | | $16,900.00 | 198209117 | V: 407 Pg 301 |