Property
Account |
Property ID: | 47650 | Abbreviated Legal Description: | SENE 35 21 27 |
Parcel # / Geo ID: | 161828003 | Agent Code: | |
Type: | Real | | |
Tax Area: | 0145 - EPHRATA RURAL AREA | Land Use Code | - |
Open Space: | N | DFL | N |
Historic Property: | N | Remodel Property: | N |
Multi-Family Redevelopment: | N | | |
Township: | | Section: | |
Range: | | Legal Acres: | 40.1100 |
Location |
Address: | | Mapsco: | |
Neighborhood: | 179902 | Map ID: | |
Neighborhood CD: | 3409 |
Owner |
Name: | Fierros Bravo, Abraham | Owner ID: | 23928 |
Mailing Address: | 514 Oasis Pl SW Mattawa, WA 99349 | % Ownership: | 100.0000000000% |
| | Exemptions: | |
Taxes and Assessment Details
Property Tax Information as of
10/21/2025
Click on "Statement Details" to expand or collapse a tax statement.
* Please enter a valid date ** Please enter a valid date *
Statement Details |
| | TOTAL: | $0.00 | $0.00 | $0.00 | $0.00 | $0.00 | $0.00 |
|
| | $0.00 | $0.00 | $0.00 | $0.00 | $0.00 | $0.00 |
Values
(+) Improvement Homesite Value: | + | N/A | |
(+) Improvement Non-Homesite Value: | + | N/A | |
(+) Land Homesite Value: | + | N/A | |
(+) Land Non-Homesite Value: | + | N/A | Ag / Timber Use Value |
(+) Curr Use (HS): | + | N/A | N/A |
(+) Curr Use (NHS): | + | N/A | N/A |
| | -------------------------- | |
(=) Market Value: | = | N/A | |
(–) Productivity Loss: | – | N/A | |
| | -------------------------- | |
(=) Subtotal: | = | N/A | |
(+) Senior Appraised Value: | + | N/A | |
(+) Non-Senior Appraised Value: | + | N/A | |
| | -------------------------- | |
(=) Total Appraised Value: | = | N/A | |
(–) Senior Exemption Loss: | – | N/A | |
(–) Exemption Loss: | – | N/A | |
| | -------------------------- | |
(=) Taxable Value: | = | N/A | |
Taxing Jurisdiction
Owner: | Fierros Bravo, Abraham | | |
% Ownership: | 100.0000000000% | | |
Total Value: | N/A | | |
Tax Area: | 0145 - EPHRATA RURAL AREA |
CTYCE | County Current Expense | N/A | N/A | N/A | N/A | | |
MHEALTH | Mental Health | N/A | N/A | N/A | N/A | | |
VETERANS | Veterans Relief Fund | N/A | N/A | N/A | N/A | | |
FIRE15 | Fire 15 | N/A | N/A | N/A | N/A | | |
HOS04 | Hospital 04 | N/A | N/A | N/A | N/A | | |
LIBRARY | Library | N/A | N/A | N/A | N/A | | |
PORT10 | Port 10 | N/A | N/A | N/A | N/A | | |
ROADS | Roads | N/A | N/A | N/A | N/A | | |
SD165 | School 165 Ephrata | N/A | N/A | N/A | N/A | | |
SD165BD | School 165 Ephrata - Bond | N/A | N/A | N/A | N/A | | |
SD165CP | School 165 Ephrata - Cap Project
| N/A | N/A | N/A | N/A | | |
SD165TRANS | School 165 Ephrata - Transportation
| N/A | N/A | N/A | N/A | | |
STATE1 | State School - Pt 1 | N/A | N/A | N/A | N/A | | |
STATE2 | State School - Pt 2 | N/A | N/A | N/A | N/A | | |
STATEREF | State School Refund | N/A | N/A | N/A | N/A | | |
| Total Tax Rate: | N/A | | | | | |
| | | | Taxes w/Current Exemptions: | N/A | | |
| | | | Taxes w/o Exemptions: | N/A | | |
Improvement / Building
Sketch
No sketches available for this property. |
Property Image
Land
1 | LgSA2 | Lrg SA 2 | 40.1100 | 1747191.60 | 0.00 | 0.00 | 0.00 | N/A | N/A |
Roll Value History
2025 | N/A | N/A | N/A | N/A | N/A |
2024 | $0 | $32,088 | $0 | $32,088 | $32,088 |
2023 | $0 | $32,088 | $0 | $32,088 | $32,088 |
2022 | $0 | $34,094 | $0 | $34,094 | $34,094 |
2021 | $0 | $32,088 | $0 | $32,088 | $32,088 |
2020 | $0 | $20,055 | $0 | $20,055 | $20,055 |
2019 | $0 | $18,050 | $0 | $18,050 | $18,050 |
2018 | $0 | $15,041 | $0 | $15,041 | $15,041 |
2017 | $0 | $15,040 | $0 | $0 | $0 |
2016 | $0 | $15,040 | $0 | $0 | $0 |
2015 | $0 | $14,040 | $0 | $0 | $0 |
2014 | $0 | $14,040 | $0 | $0 | $0 |
2013 | $0 | $14,040 | $0 | $0 | $0 |
2012 | $0 | $20,055 | $0 | $0 | $0 |
2011 | $0 | $14,040 | $0 | $0 | $0 |
Deed and Sales History
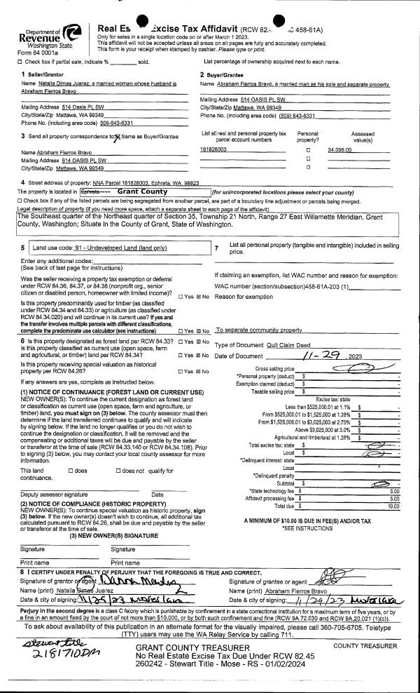
1 | 11/29/2023 | QCD | Quit Claim Deed | Diams Juarez, Natalia | Fierros Bravo, Abraham | | | $0.00 | 260242 | 1494482 |
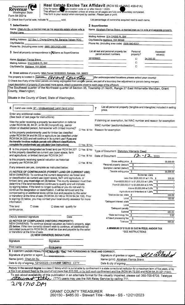
2 | 12/12/2023 | SWD | Statutory Warranty Deed | Su, Chen-An | Fierros Bravo, Abraham | | | $30,000.00 | 260150 | 1494216 |
3 | 04/02/1990 | SWD | Statutory Warranty Deed | T.D. INVESTMENT, INC | CHEN-AN SU | | | $20,000.00 | 199011552 | V: 766 Pg 192 |
4 | 03/23/1990 | WFD | Warranty Fulfillment Deed | Moses Lake Development Corp | T D Investment, Inc | | | | 0 | Bk 769 Pg 112 |
5 | 10/17/1989 | Warranty D | Warranty D | Unknown seller | Unknown buyer | | | $0.00 | 198911384 | |
6 | 10/16/1989 | LC | LC | Moses Lake Development Corp | T D Investment, Inc | | | $584,000.00 | 113841 | Bk 743 Pg 354 |
  | |
7 | 02/17/1989 | Quit Claim | Quit Claim | DAUGHERTY, ARLYN G/NATALI | Moses Lake Development Corp | | | $0.00 | 198911159 | V: 712 Pg 182 |
8 | 07/01/1982 | LC | LC | | DAUGHERTY, ARLYN G/NATLIE E | | | $16,900.00 | 198209098 | V: 405 Pg 553 |
Payout Agreement
No payout information available.. |