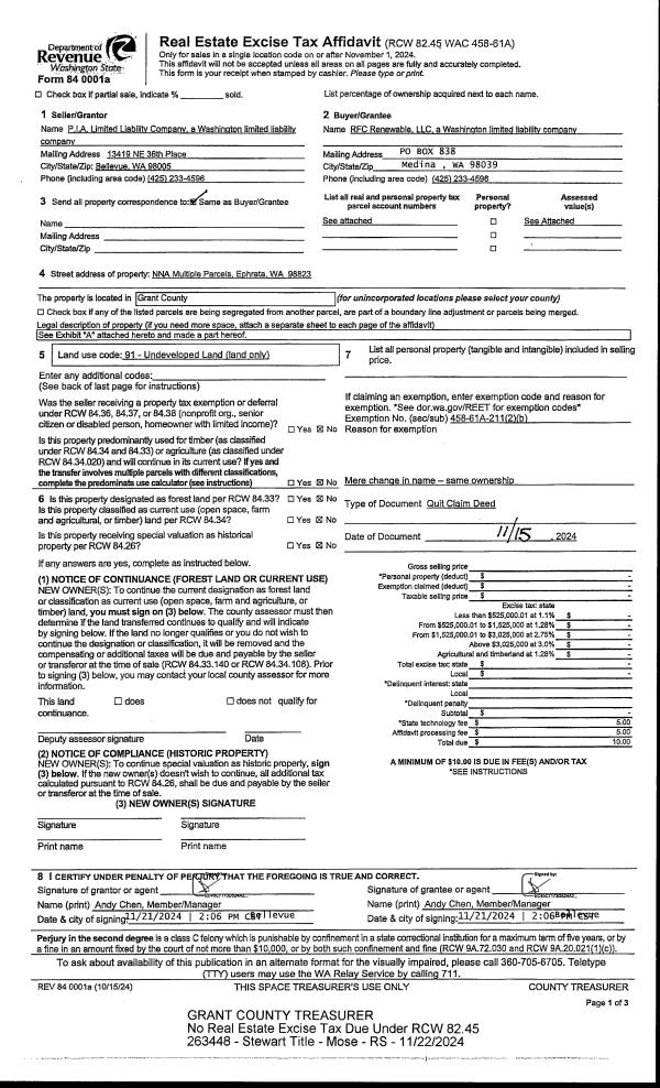
1 | 11/15/2024 | QCD | Quit Claim Deed | PIA LLC | RFC Renewable LLC | | | $0.00 | 263448 | 1506115 |
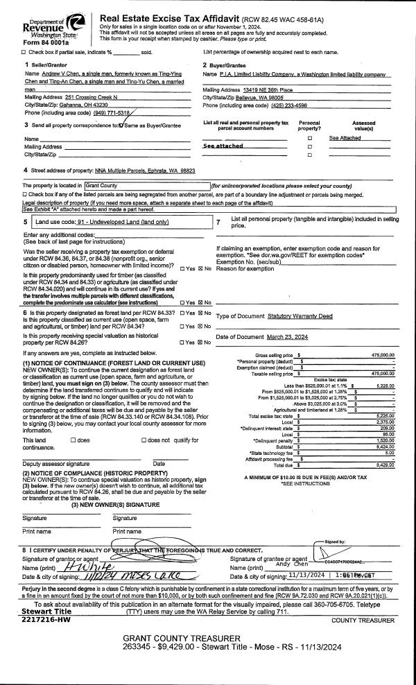
2 | 03/23/2024 | SWD | Statutory Warranty Deed | Chen Etal, Ting-Yu | PIA LLC | | | $475,000.00 | 263345 | 1505739 |
  | |
3 | 12/27/2007 | SWD | Statutory Warranty Deed | Chen, Chin Huei & Shue Gean | CHEN ETAL, ANDREW VICTOR | | | $0.00 | 200719549 | V: 0 Pg 0 |
4 | 03/23/1990 | WFD | Warranty Fulfillment Deed | Moses Lake Development Corp | T D Investment, Inc | | | | 0 | Bk 769 Pg 112 |
5 | 11/13/1989 | SWD | Statutory Warranty Deed | T D INVESTMENT INC | CHEN, CHIN-HUEI/SHUE-GEAN | | | $0.00 | 198911411 | V: 746 Pg 526 |
6 | 10/16/1989 | LC | LC | Moses Lake Development Corp | T D Investment, Inc | | | $584,000.00 | 113841 | Bk 743 Pg 354 |
  | |
7 | 06/01/1982 | QC | QC | | Moses Lake Development Corp | | | $1.00 | 198209030 | V: 400 Pg 152 |
  | |