Property
Account |
Property ID: | 47534 | Abbreviated Legal Description: | SWNE 25 21 27 |
Parcel # / Geo ID: | 161805002 | Agent Code: | |
Type: | Real | | |
Tax Area: | 0145 - EPHRATA RURAL AREA | Land Use Code | - |
Open Space: | N | DFL | N |
Historic Property: | N | Remodel Property: | N |
Multi-Family Redevelopment: | N | | |
Township: | | Section: | |
Range: | | Legal Acres: | 41.0000 |
Location |
Address: | | Mapsco: | |
Neighborhood: | 179902 | Map ID: | |
Neighborhood CD: | 3409 |
Owner |
Name: | RFC Renewable LLC | Owner ID: | 407581 |
Mailing Address: | PO Box 838 Medina, WA 98039 | % Ownership: | 100.0000000000% |
| | Exemptions: | |
Taxes and Assessment Details
Property Tax Information as of
10/21/2025
Click on "Statement Details" to expand or collapse a tax statement.
* Please enter a valid date ** Please enter a valid date *
Statement Details |
| | TOTAL: | $0.00 | $0.00 | $0.00 | $0.00 | $0.00 | $0.00 |
|
| | $0.00 | $0.00 | $0.00 | $0.00 | $0.00 | $0.00 |
Values
(+) Improvement Homesite Value: | + | N/A | |
(+) Improvement Non-Homesite Value: | + | N/A | |
(+) Land Homesite Value: | + | N/A | |
(+) Land Non-Homesite Value: | + | N/A | Ag / Timber Use Value |
(+) Curr Use (HS): | + | N/A | N/A |
(+) Curr Use (NHS): | + | N/A | N/A |
| | -------------------------- | |
(=) Market Value: | = | N/A | |
(–) Productivity Loss: | – | N/A | |
| | -------------------------- | |
(=) Subtotal: | = | N/A | |
(+) Senior Appraised Value: | + | N/A | |
(+) Non-Senior Appraised Value: | + | N/A | |
| | -------------------------- | |
(=) Total Appraised Value: | = | N/A | |
(–) Senior Exemption Loss: | – | N/A | |
(–) Exemption Loss: | – | N/A | |
| | -------------------------- | |
(=) Taxable Value: | = | N/A | |
Taxing Jurisdiction
Owner: | RFC Renewable LLC | | |
% Ownership: | 100.0000000000% | | |
Total Value: | N/A | | |
Tax Area: | 0145 - EPHRATA RURAL AREA |
CTYCE | County Current Expense | N/A | N/A | N/A | N/A | | |
MHEALTH | Mental Health | N/A | N/A | N/A | N/A | | |
VETERANS | Veterans Relief Fund | N/A | N/A | N/A | N/A | | |
FIRE15 | Fire 15 | N/A | N/A | N/A | N/A | | |
HOS04 | Hospital 04 | N/A | N/A | N/A | N/A | | |
LIBRARY | Library | N/A | N/A | N/A | N/A | | |
PORT10 | Port 10 | N/A | N/A | N/A | N/A | | |
ROADS | Roads | N/A | N/A | N/A | N/A | | |
SD165 | School 165 Ephrata | N/A | N/A | N/A | N/A | | |
SD165BD | School 165 Ephrata - Bond | N/A | N/A | N/A | N/A | | |
SD165CP | School 165 Ephrata - Cap Project
| N/A | N/A | N/A | N/A | | |
SD165TRANS | School 165 Ephrata - Transportation
| N/A | N/A | N/A | N/A | | |
STATE1 | State School - Pt 1 | N/A | N/A | N/A | N/A | | |
STATE2 | State School - Pt 2 | N/A | N/A | N/A | N/A | | |
STATEREF | State School Refund | N/A | N/A | N/A | N/A | | |
| Total Tax Rate: | N/A | | | | | |
| | | | Taxes w/Current Exemptions: | N/A | | |
| | | | Taxes w/o Exemptions: | N/A | | |
Improvement / Building
Sketch
No sketches available for this property. |
Property Image
Land
1 | LgSA2 | Lrg SA 2 | 41.0000 | 1785960.00 | 0.00 | 0.00 | 0.00 | N/A | N/A |
Roll Value History
2025 | N/A | N/A | N/A | N/A | N/A |
2024 | $0 | $32,800 | $0 | $32,800 | $32,800 |
2023 | $0 | $32,800 | $0 | $32,800 | $32,800 |
2022 | $0 | $34,850 | $0 | $34,850 | $34,850 |
2021 | $0 | $32,800 | $0 | $32,800 | $32,800 |
2020 | $0 | $20,500 | $0 | $20,500 | $20,500 |
2019 | $0 | $18,450 | $0 | $18,450 | $18,450 |
2018 | $0 | $15,375 | $0 | $15,375 | $15,375 |
2017 | $0 | $15,375 | $0 | $0 | $0 |
2016 | $0 | $15,375 | $0 | $0 | $0 |
2015 | $0 | $14,350 | $0 | $0 | $0 |
2014 | $0 | $14,350 | $0 | $0 | $0 |
2013 | $0 | $14,350 | $0 | $0 | $0 |
2012 | $0 | $20,500 | $0 | $0 | $0 |
2011 | $0 | $14,350 | $0 | $0 | $0 |
Deed and Sales History
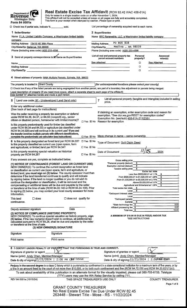
1 | 11/15/2024 | QCD | Quit Claim Deed | PIA LLC | RFC Renewable LLC | | | $0.00 | 263448 | 1506115 |
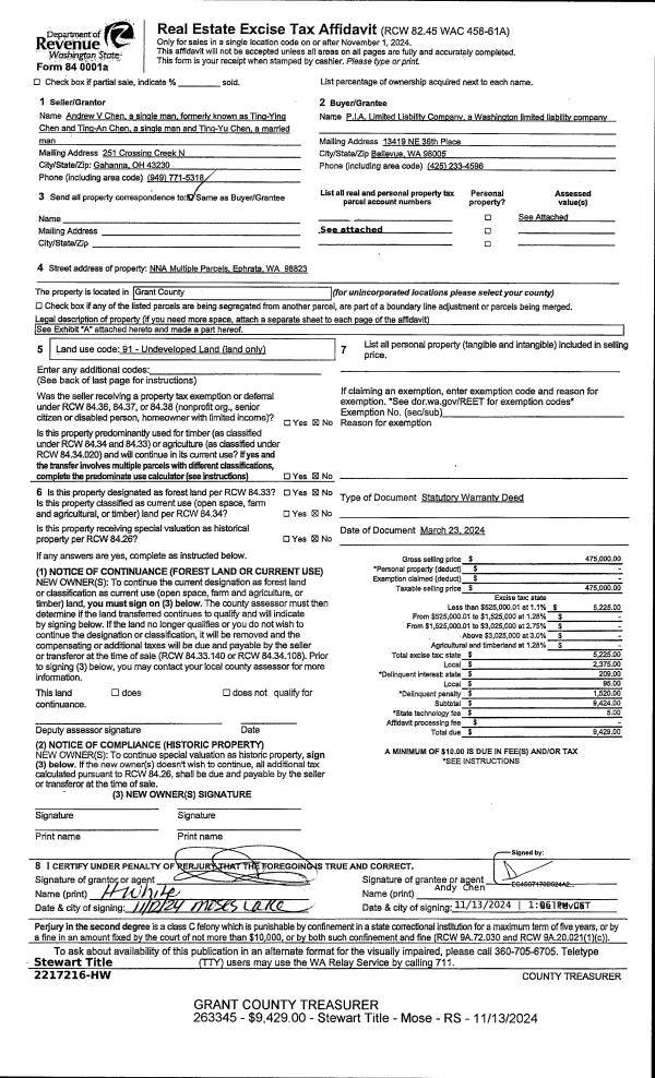
2 | 03/23/2024 | SWD | Statutory Warranty Deed | Chen Etal, Ting-Yu | PIA LLC | | | $475,000.00 | 263345 | 1505739 |
  | |
3 | 12/27/2007 | SWD | Statutory Warranty Deed | Chen, Chin Huei & Shue Gean | CHEN ETAL, ANDREW VICTOR | | | $0.00 | 200719549 | V: 0 Pg 0 |
4 | 03/23/1990 | WFD | Warranty Fulfillment Deed | Moses Lake Development Corp | T D Investment, Inc | | | | 0 | Bk 769 Pg 112 |
5 | 11/13/1989 | SWD | Statutory Warranty Deed | T D INVESTMENT INC | CHEN, CHIN-HUEI/SHUE-GEAN | | | $0.00 | 198911411 | V: 746 Pg 526 |
6 | 10/16/1989 | LC | LC | Moses Lake Development Corp | T D Investment, Inc | | | $584,000.00 | 113841 | Bk 743 Pg 354 |
  | |
7 | 07/01/1985 | QC | QC | | Unknown buyer | | | $1.00 | 198510048 | V: 520 Pg 40 |
Payout Agreement
No payout information available.. |