Property
Account |
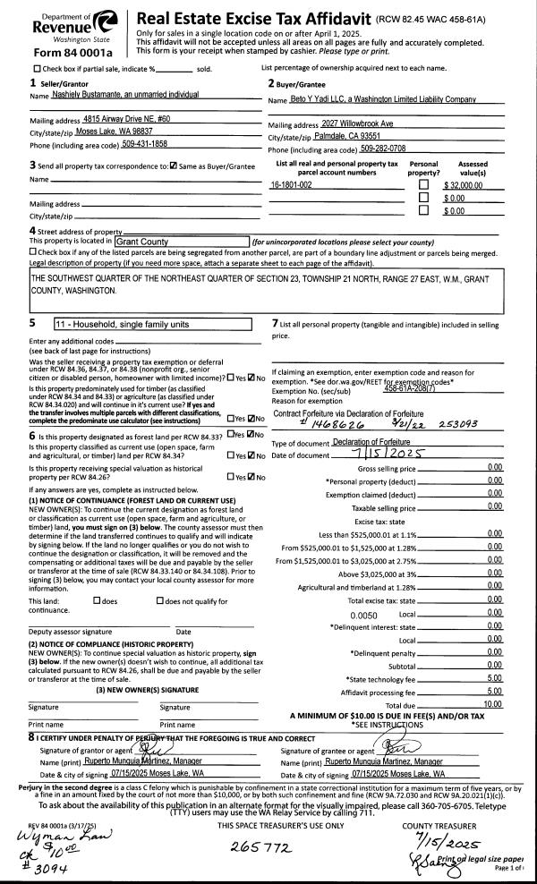
Property ID: | 47506 | Abbreviated Legal Description: | SWNE 23 21 27 |
Parcel # / Geo ID: | 161801002 | Agent Code: | ID:364313 |
Type: | Real | | |
Tax Area: | 0065 - EPHRATA RURAL AREA | Land Use Code | - |
Open Space: | N | DFL | N |
Historic Property: | N | Remodel Property: | N |
Multi-Family Redevelopment: | N | | |
Township: | | Section: | |
Range: | | Legal Acres: | 40.0000 |
Location |
Address: | | Mapsco: | |
Neighborhood: | 179902 | Map ID: | |
Neighborhood CD: | 3409 |
Owner |
Name: | Beto Y Yadi LLC | Owner ID: | 307134 |
Mailing Address: | 2027 Willowbrook Ave Palmdale, CA 93551 | % Ownership: | 100.0000000000% |
| | Exemptions: | |
Taxes and Assessment Details
Property Tax Information as of
10/21/2025
Click on "Statement Details" to expand or collapse a tax statement.
* Please enter a valid date ** Please enter a valid date *
Statement Details |
| | TOTAL: | $0.00 | $0.00 | $0.00 | $0.00 | $0.00 | $0.00 |
|
| | $0.00 | $0.00 | $0.00 | $0.00 | $0.00 | $0.00 |
Values
(+) Improvement Homesite Value: | + | N/A | |
(+) Improvement Non-Homesite Value: | + | N/A | |
(+) Land Homesite Value: | + | N/A | |
(+) Land Non-Homesite Value: | + | N/A | Ag / Timber Use Value |
(+) Curr Use (HS): | + | N/A | N/A |
(+) Curr Use (NHS): | + | N/A | N/A |
| | -------------------------- | |
(=) Market Value: | = | N/A | |
(–) Productivity Loss: | – | N/A | |
| | -------------------------- | |
(=) Subtotal: | = | N/A | |
(+) Senior Appraised Value: | + | N/A | |
(+) Non-Senior Appraised Value: | + | N/A | |
| | -------------------------- | |
(=) Total Appraised Value: | = | N/A | |
(–) Senior Exemption Loss: | – | N/A | |
(–) Exemption Loss: | – | N/A | |
| | -------------------------- | |
(=) Taxable Value: | = | N/A | |
Taxing Jurisdiction
Owner: | Beto Y Yadi LLC | | |
% Ownership: | 100.0000000000% | | |
Total Value: | N/A | | |
Tax Area: | 0065 - EPHRATA RURAL AREA |
CTYCE | County Current Expense | N/A | N/A | N/A | N/A | | |
MHEALTH | Mental Health | N/A | N/A | N/A | N/A | | |
VETERANS | Veterans Relief Fund | N/A | N/A | N/A | N/A | | |
FIRE07 | Fire 07 | N/A | N/A | N/A | N/A | | |
FIRE07EMS | Fire 07 - E M S
| N/A | N/A | N/A | N/A | | |
HOS04 | Hospital 04 | N/A | N/A | N/A | N/A | | |
LIBRARY | Library | N/A | N/A | N/A | N/A | | |
PORT10 | Port 10 | N/A | N/A | N/A | N/A | | |
ROADS | Roads | N/A | N/A | N/A | N/A | | |
SD165 | School 165 Ephrata | N/A | N/A | N/A | N/A | | |
SD165BD | School 165 Ephrata - Bond | N/A | N/A | N/A | N/A | | |
SD165CP | School 165 Ephrata - Cap Project
| N/A | N/A | N/A | N/A | | |
SD165TRANS | School 165 Ephrata - Transportation
| N/A | N/A | N/A | N/A | | |
STATE1 | State School - Pt 1 | N/A | N/A | N/A | N/A | | |
STATE2 | State School - Pt 2 | N/A | N/A | N/A | N/A | | |
STATEREF | State School Refund | N/A | N/A | N/A | N/A | | |
| Total Tax Rate: | N/A | | | | | |
| | | | Taxes w/Current Exemptions: | N/A | | |
| | | | Taxes w/o Exemptions: | N/A | | |
Improvement / Building
Sketch
No sketches available for this property. |
Property Image
Land
1 | LgSA2 | Lrg SA 2 | 40.0000 | 1742400.00 | 0.00 | 0.00 | 0.00 | N/A | N/A |
Roll Value History
2025 | N/A | N/A | N/A | N/A | N/A |
2024 | $0 | $32,000 | $0 | $32,000 | $32,000 |
2023 | $0 | $32,000 | $0 | $32,000 | $32,000 |
2022 | $0 | $34,000 | $0 | $34,000 | $34,000 |
2021 | $0 | $32,000 | $0 | $32,000 | $32,000 |
2020 | $0 | $20,000 | $0 | $20,000 | $20,000 |
2019 | $0 | $18,000 | $0 | $18,000 | $18,000 |
2018 | $0 | $12,000 | $0 | $12,000 | $12,000 |
2017 | $0 | $15,000 | $0 | $0 | $0 |
2016 | $0 | $15,000 | $0 | $0 | $0 |
2015 | $0 | $14,000 | $0 | $0 | $0 |
2014 | $0 | $14,000 | $0 | $0 | $0 |
2013 | $0 | $14,000 | $0 | $0 | $0 |
2012 | $0 | $20,000 | $0 | $0 | $0 |
2011 | $0 | $14,000 | $0 | $0 | $0 |
Deed and Sales History
1 | 07/15/2025 | Dec of For | Dec of For | Bustamante, Nashiely | Beto Y Yadi LLC | | | $0.00 | 265772 | 1514483 |
2 | 04/08/2025 | NOTIF | NOTIF | Bustamante, Nashiely | | | | | 0 | 1510695 |
3 | 03/18/2022 | LC | LC | Beto Y Yadi LLC | Bustamante, Nashiely | | | $180,000.00 | 253093 | 1468626 |
4 | 11/26/2021 | SWD | Statutory Warranty Deed | Hsu Hung, Jui-Ling | Beto Y Yadi LLC | | | $32,500.00 | 251745 | 1462135 |
5 | 10/28/2019 | QCD | Quit Claim Deed | Hung, Jui-ling & Shin C | Hsu Hung, Jui-Ling | | | | 241350 | 1416984 |
6 | 03/23/1990 | WFD | Warranty Fulfillment Deed | Moses Lake Development Corp | T D Investment, Inc | | | | 0 | Bk 769 Pg 112 |
7 | 02/06/1990 | SWD | Statutory Warranty Deed | CHENG, TZU-LING | HUNG ET AL, HUS JUI-LING | | | $20,000.00 | 199011491 | V: 758 Pg 167 |
8 | 11/30/1989 | SWD | Statutory Warranty Deed | T D INVESTMENT INC | CHENG, TZU-LING | | | $0.00 | 198911427 | V: 749 Pg 268 |
9 | 10/31/1989 | | | MOSES LAKE DEVELOP CORP | C M C REAL ESTATE CORPORATION | | | $0.00 | 198900000 | V: 747 Pg 148 |
10 | 10/31/1989 | | | MOSES LAKE DEVELOP CORP | NOGGLES, FRED | | | $0.00 | 198900000 | V: 747 Pg 148 |
11 | 10/31/1989 | | | MOSES LAKE DEVELOP CORP | SMITH, GENEVA | | | $0.00 | 198900000 | V: 747 Pg 148 |
12 | 10/31/1989 | | | MOSES LAKE DEVELOP CORP | SUPER VALU STORES INC | | | $0.00 | 198900000 | V: 747 Pg 148 |
13 | 10/31/1989 | | | MOSES LAKE DEVELOP CORP | T D INVESTMENT INC | | | $0.00 | 198900000 | V: 747 Pg 148 |
14 | 10/16/1989 | LC | LC | Moses Lake Development Corp | T D Investment, Inc | | | $584,000.00 | 113841 | Bk 743 Pg 354 |
  | |
15 | 07/01/1984 | QC | QC | | Moses Lake Development Corp | | | $31.00 | 198409699 | V: 475 Pg 14 |
16 | 07/01/1981 | LC | LC | | FITZGERALD, T J/JOANNA & | | | $14,000.00 | 198108761 | V: 366 Pg 557 |
Payout Agreement
No payout information available.. |