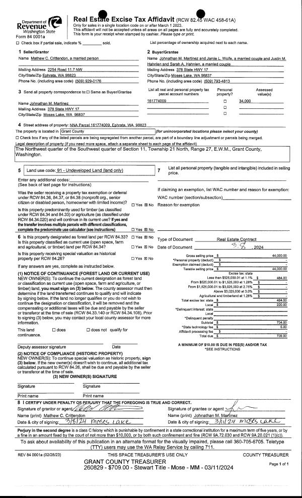
| 1 | 03/08/2024 | REC | Real Estate Contract | Crittendon, Mathew C | Hahnlen Etal, Justin M & Sarah A | | | $44,000.00 | 260829 | 1496696 |
| 2 | 03/08/2024 | REC | Real Estate Contract | Crittendon, Mathew C | Martinez Etal, Johnathan M & Jamie L Wolfe | | | $44,000.00 | 260829 | 1496696 |
| 3 | 02/17/2021 | TRTD | TRTD | Amaxi Investment Company | Crittendon, Mathew C | | | $20,311.00 | 247645 | 1445099 |
| 4 | 09/28/2016 | SWD | Statutory Warranty Deed | Chu, Nelson T & Lina S | Amaxi Investment Company | | | $250,000.00 | 228595 | 1371775 |
|   | |
| 5 | 11/13/1989 | SWD | Statutory Warranty Deed | T D INVESTMENT INC | Chu, Nelson T & Lina S | | | $17,750.00 | 198911410 | V: 746 Pg 536 |
| 6 | 10/17/1989 | Warranty D | Warranty D | MOSES LAKE DEVELOP CORP | CONTRERAS, FELIPE | | | $0.00 | 198900000 | V: 743 Pg 362 |
| 7 | 10/17/1989 | Warranty D | Warranty D | MOSES LAKE DEVELOP CORP | COX, DAN/MARY LOU | | | $0.00 | 198900000 | V: 743 Pg 362 |
| 8 | 10/17/1989 | Warranty D | Warranty D | MOSES LAKE DEVELOP CORP | FOISTER, LYLE E/BETH R | | | $0.00 | 198900000 | V: 743 Pg 362 |
| 9 | 10/17/1989 | Warranty D | Warranty D | MOSES LAKE DEVELOP CORP | HERMANS, PATRICK D/ROSE M | | | $0.00 | 198900000 | V: 743 Pg 362 |
| 10 | 10/17/1989 | Warranty D | Warranty D | MOSES LAKE DEVELOP CORP | Jacobsen, Lawrence & Sherri | | | $0.00 | 198900000 | V: 743 Pg 362 |
| 11 | 10/17/1989 | Warranty D | Warranty D | MOSES LAKE DEVELOP CORP | LANGE, GREGORY B/SHARON L | | | $0.00 | 198900000 | V: 743 Pg 362 |
| 12 | 10/17/1989 | Warranty D | Warranty D | MOSES LAKE DEVELOP CORP | Litowitz, Danny Lee | | | $0.00 | 198900000 | V: 743 Pg 362 |
| 13 | 10/17/1989 | Warranty D | Warranty D | MOSES LAKE DEVELOP CORP | MOBERG, HAROLD J/JJANIS M | | | $0.00 | 198900000 | V: 743 Pg 362 |
| 14 | 10/17/1989 | Warranty D | Warranty D | MOSES LAKE DEVELOP CORP | NEFF, PAUL L/PATTY | | | $0.00 | 198900000 | V: 743 Pg 362 |
| 15 | 10/17/1989 | Warranty D | Warranty D | MOSES LAKE DEVELOP CORP | O'NEEL, ERNEST M/BERTHA L | | | $0.00 | 198900000 | V: 743 Pg 362 |
| 16 | 10/17/1989 | Warranty D | Warranty D | MOSES LAKE DEVELOP CORP | PIERCY, GARY W/SUSAN L | | | $0.00 | 198900000 | V: 743 Pg 362 |
| 17 | 10/17/1989 | Warranty D | Warranty D | MOSES LAKE DEVELOP CORP | RAMBOW, DAVE/TRACY | | | $0.00 | 198900000 | V: 743 Pg 362 |
| 18 | 10/17/1989 | Warranty D | Warranty D | MOSES LAKE DEVELOP CORP | RIGSBY JR, FLOYD W/GISELA A | | | $0.00 | 198900000 | V: 743 Pg 362 |
| 19 | 10/17/1989 | Warranty D | Warranty D | MOSES LAKE DEVELOP CORP | T D INVESTMENT INC | | | $0.00 | 198900000 | V: 743 Pg 362 |
| 20 | 10/17/1989 | Warranty D | Warranty D | MOSES LAKE DEVELOP CORP | T D Investment, Inc | | | $0.00 | 198900000 | V: 743 Pg 362 |
| 21 | 10/17/1989 | Warranty D | Warranty D | MOSES LAKE DEVELOP CORP | T.D. INVESTMENT | | | $0.00 | 198900000 | V: 743 Pg 362 |
| 22 | 10/17/1989 | Warranty D | Warranty D | MOSES LAKE DEVELOP CORP | TENAGLIA, RICHARD | | | $0.00 | 198900000 | V: 743 Pg 362 |
| 23 | 10/17/1989 | Warranty D | Warranty D | MOSES LAKE DEVELOP CORP | TURNER, GEORGE C/MADELYN V | | | $0.00 | 198900000 | V: 743 Pg 362 |
| 24 | 10/17/1989 | Warranty D | Warranty D | MOSES LAKE DEVELOP CORP | WEST ONE BANK | | | $0.00 | 198900000 | V: 743 Pg 362 |
| 25 | 10/17/1989 | Warranty D | Warranty D | MOSES LAKE DEVELOP CORP | Zander, Robert J & Udelia | | | $0.00 | 198900000 | V: 743 Pg 362 |
| 26 | 10/17/1989 | Warranty D | Warranty D | Moses Lake Development | CONTRERAS, FELIPE | | | $0.00 | 198900000 | V: 743 Pg 362 |
| 27 | 10/17/1989 | Warranty D | Warranty D | Moses Lake Development | COX, DAN/MARY LOU | | | $0.00 | 198900000 | V: 743 Pg 362 |
| 28 | 10/17/1989 | Warranty D | Warranty D | Moses Lake Development | FOISTER, LYLE E/BETH R | | | $0.00 | 198900000 | V: 743 Pg 362 |
| 29 | 10/17/1989 | Warranty D | Warranty D | Moses Lake Development | HERMANS, PATRICK D/ROSE M | | | $0.00 | 198900000 | V: 743 Pg 362 |
| 30 | 10/17/1989 | Warranty D | Warranty D | Moses Lake Development | Jacobsen, Lawrence & Sherri | | | $0.00 | 198900000 | V: 743 Pg 362 |
| 31 | 10/17/1989 | Warranty D | Warranty D | Moses Lake Development | LANGE, GREGORY B/SHARON L | | | $0.00 | 198900000 | V: 743 Pg 362 |
| 32 | 10/17/1989 | Warranty D | Warranty D | Moses Lake Development | Litowitz, Danny Lee | | | $0.00 | 198900000 | V: 743 Pg 362 |
| 33 | 10/17/1989 | Warranty D | Warranty D | Moses Lake Development | MOBERG, HAROLD J/JJANIS M | | | $0.00 | 198900000 | V: 743 Pg 362 |
| 34 | 10/17/1989 | Warranty D | Warranty D | Moses Lake Development | NEFF, PAUL L/PATTY | | | $0.00 | 198900000 | V: 743 Pg 362 |
| 35 | 10/17/1989 | Warranty D | Warranty D | Moses Lake Development | O'NEEL, ERNEST M/BERTHA L | | | $0.00 | 198900000 | V: 743 Pg 362 |
| 36 | 10/17/1989 | Warranty D | Warranty D | Moses Lake Development | PIERCY, GARY W/SUSAN L | | | $0.00 | 198900000 | V: 743 Pg 362 |
| 37 | 10/17/1989 | Warranty D | Warranty D | Moses Lake Development | RAMBOW, DAVE/TRACY | | | $0.00 | 198900000 | V: 743 Pg 362 |
| 38 | 10/17/1989 | Warranty D | Warranty D | Moses Lake Development | RIGSBY JR, FLOYD W/GISELA A | | | $0.00 | 198900000 | V: 743 Pg 362 |
| 39 | 10/17/1989 | Warranty D | Warranty D | Moses Lake Development | T D INVESTMENT INC | | | $0.00 | 198900000 | V: 743 Pg 362 |
| 40 | 10/17/1989 | Warranty D | Warranty D | Moses Lake Development | T D Investment, Inc | | | $0.00 | 198900000 | V: 743 Pg 362 |
| 41 | 10/17/1989 | Warranty D | Warranty D | Moses Lake Development | T.D. INVESTMENT | | | $0.00 | 198900000 | V: 743 Pg 362 |
| 42 | 10/17/1989 | Warranty D | Warranty D | Moses Lake Development | TENAGLIA, RICHARD | | | $0.00 | 198900000 | V: 743 Pg 362 |
| 43 | 10/17/1989 | Warranty D | Warranty D | Moses Lake Development | TURNER, GEORGE C/MADELYN V | | | $0.00 | 198900000 | V: 743 Pg 362 |
| 44 | 10/17/1989 | Warranty D | Warranty D | Moses Lake Development | WEST ONE BANK | | | $0.00 | 198900000 | V: 743 Pg 362 |
| 45 | 10/17/1989 | Warranty D | Warranty D | Moses Lake Development | Zander, Robert J & Udelia | | | $0.00 | 198900000 | V: 743 Pg 362 |
| 46 | 10/17/1989 | Warranty D | Warranty D | MOSES LAKE DEVELOPMENT CO | CONTRERAS, FELIPE | | | $0.00 | 198900000 | V: 743 Pg 362 |
| 47 | 10/17/1989 | Warranty D | Warranty D | MOSES LAKE DEVELOPMENT CO | COX, DAN/MARY LOU | | | $0.00 | 198900000 | V: 743 Pg 362 |
| 48 | 10/17/1989 | Warranty D | Warranty D | MOSES LAKE DEVELOPMENT CO | FOISTER, LYLE E/BETH R | | | $0.00 | 198900000 | V: 743 Pg 362 |
| 49 | 10/17/1989 | Warranty D | Warranty D | MOSES LAKE DEVELOPMENT CO | HERMANS, PATRICK D/ROSE M | | | $0.00 | 198900000 | V: 743 Pg 362 |
| 50 | 10/17/1989 | Warranty D | Warranty D | MOSES LAKE DEVELOPMENT CO | Jacobsen, Lawrence & Sherri | | | $0.00 | 198900000 | V: 743 Pg 362 |
| 51 | 10/17/1989 | Warranty D | Warranty D | MOSES LAKE DEVELOPMENT CO | LANGE, GREGORY B/SHARON L | | | $0.00 | 198900000 | V: 743 Pg 362 |
| 52 | 10/17/1989 | Warranty D | Warranty D | MOSES LAKE DEVELOPMENT CO | Litowitz, Danny Lee | | | $0.00 | 198900000 | V: 743 Pg 362 |
| 53 | 10/17/1989 | Warranty D | Warranty D | MOSES LAKE DEVELOPMENT CO | MOBERG, HAROLD J/JJANIS M | | | $0.00 | 198900000 | V: 743 Pg 362 |
| 54 | 10/17/1989 | Warranty D | Warranty D | MOSES LAKE DEVELOPMENT CO | NEFF, PAUL L/PATTY | | | $0.00 | 198900000 | V: 743 Pg 362 |
| 55 | 10/17/1989 | Warranty D | Warranty D | MOSES LAKE DEVELOPMENT CO | O'NEEL, ERNEST M/BERTHA L | | | $0.00 | 198900000 | V: 743 Pg 362 |
| 56 | 10/17/1989 | Warranty D | Warranty D | MOSES LAKE DEVELOPMENT CO | PIERCY, GARY W/SUSAN L | | | $0.00 | 198900000 | V: 743 Pg 362 |
| 57 | 10/17/1989 | Warranty D | Warranty D | MOSES LAKE DEVELOPMENT CO | RAMBOW, DAVE/TRACY | | | $0.00 | 198900000 | V: 743 Pg 362 |
| 58 | 10/17/1989 | Warranty D | Warranty D | MOSES LAKE DEVELOPMENT CO | RIGSBY JR, FLOYD W/GISELA A | | | $0.00 | 198900000 | V: 743 Pg 362 |
| 59 | 10/17/1989 | Warranty D | Warranty D | MOSES LAKE DEVELOPMENT CO | T D INVESTMENT INC | | | $0.00 | 198900000 | V: 743 Pg 362 |
| 60 | 10/17/1989 | Warranty D | Warranty D | MOSES LAKE DEVELOPMENT CO | T D Investment, Inc | | | $0.00 | 198900000 | V: 743 Pg 362 |
| 61 | 10/17/1989 | Warranty D | Warranty D | MOSES LAKE DEVELOPMENT CO | T.D. INVESTMENT | | | $0.00 | 198900000 | V: 743 Pg 362 |
| 62 | 10/17/1989 | Warranty D | Warranty D | MOSES LAKE DEVELOPMENT CO | TENAGLIA, RICHARD | | | $0.00 | 198900000 | V: 743 Pg 362 |
| 63 | 10/17/1989 | Warranty D | Warranty D | MOSES LAKE DEVELOPMENT CO | TURNER, GEORGE C/MADELYN V | | | $0.00 | 198900000 | V: 743 Pg 362 |
| 64 | 10/17/1989 | Warranty D | Warranty D | MOSES LAKE DEVELOPMENT CO | WEST ONE BANK | | | $0.00 | 198900000 | V: 743 Pg 362 |
| 65 | 10/17/1989 | Warranty D | Warranty D | MOSES LAKE DEVELOPMENT CO | Zander, Robert J & Udelia | | | $0.00 | 198900000 | V: 743 Pg 362 |