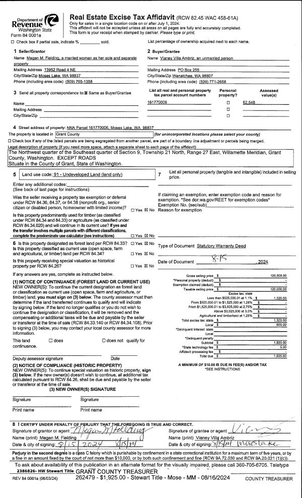
Property
Account |
Property ID: | 47334 | Abbreviated Legal Description: | NWSE 9 21 27 |
Parcel # / Geo ID: | 161770006 | Agent Code: | |
Type: | Real | | |
Tax Area: | 0133 - EPHRATA RURAL AREA | Land Use Code | - |
Open Space: | N | DFL | N |
Historic Property: | N | Remodel Property: | N |
Multi-Family Redevelopment: | N | | |
Township: | | Section: | |
Range: | | Legal Acres: | 40.0000 |
Location |
Address: | | Mapsco: | |
Neighborhood: | 179902 | Map ID: | |
Neighborhood CD: | 3409 |
Owner |
Name: | Villa Ambriz, Vianey | Owner ID: | 406195 |
Mailing Address: | 1988 Road 20 NE Soap Lake, WA 98851-9799 | % Ownership: | 100.0000000000% |
| | Exemptions: | |
Taxes and Assessment Details
Values
(+) Improvement Homesite Value: | + | N/A | |
(+) Improvement Non-Homesite Value: | + | N/A | |
(+) Land Homesite Value: | + | N/A | |
(+) Land Non-Homesite Value: | + | N/A | Ag / Timber Use Value |
(+) Curr Use (HS): | + | N/A | N/A |
(+) Curr Use (NHS): | + | N/A | N/A |
| | -------------------------- | |
(=) Market Value: | = | N/A | |
(–) Productivity Loss: | – | N/A | |
| | -------------------------- | |
(=) Subtotal: | = | N/A | |
(+) Senior Appraised Value: | + | N/A | |
(+) Non-Senior Appraised Value: | + | N/A | |
| | -------------------------- | |
(=) Total Appraised Value: | = | N/A | |
(–) Senior Exemption Loss: | – | N/A | |
(–) Exemption Loss: | – | N/A | |
| | -------------------------- | |
(=) Taxable Value: | = | N/A | |
Taxing Jurisdiction
Owner: | Villa Ambriz, Vianey | | |
% Ownership: | 100.0000000000% | | |
Total Value: | N/A | | |
Tax Area: | 0133 - EPHRATA RURAL AREA |
STATEREF | State School Refund | N/A | N/A | N/A | N/A | | |
CTYCE | County Current Expense | N/A | N/A | N/A | N/A | | |
MHEALTH | Mental Health | N/A | N/A | N/A | N/A | | |
VETERANS | Veterans Relief Fund | N/A | N/A | N/A | N/A | | |
FIRE07 | Fire 07 | N/A | N/A | N/A | N/A | | |
FIRE07EMS | Fire 07 - E M S
| N/A | N/A | N/A | N/A | | |
HOS03 | Hospital 03 | N/A | N/A | N/A | N/A | | |
HOS395GO | Hospital 03 - Bond | N/A | N/A | N/A | N/A | | |
LIBRARY | Library | N/A | N/A | N/A | N/A | | |
PORT09 | Port 09 | N/A | N/A | N/A | N/A | | |
ROADS | Roads | N/A | N/A | N/A | N/A | | |
SD165 | School 165 Ephrata | N/A | N/A | N/A | N/A | | |
SD165BD | School 165 Ephrata - Bond | N/A | N/A | N/A | N/A | | |
SD165CP | School 165 Ephrata - Cap Project
| N/A | N/A | N/A | N/A | | |
SD165TRANS | School 165 Ephrata - Transportation
| N/A | N/A | N/A | N/A | | |
STATE1 | State School - Pt 1 | N/A | N/A | N/A | N/A | | |
STATE2 | State School - Pt 2 | N/A | N/A | N/A | N/A | | |
| Total Tax Rate: | N/A | | | | | |
| | | | Taxes w/Current Exemptions: | N/A | | |
| | | | Taxes w/o Exemptions: | N/A | | |
Improvement / Building
Sketch
No sketches available for this property. |
Property Image
Land
1 | LgSA | Lrg SA (20-50±) | 40.0000 | 1742400.00 | 0.00 | 0.00 | 0.00 | N/A | N/A |
Roll Value History
2025 | N/A | N/A | N/A | N/A | N/A |
2024 | $0 | $62,548 | $0 | $62,548 | $62,548 |
2023 | $0 | $62,548 | $0 | $62,548 | $62,548 |
2022 | $0 | $62,548 | $0 | $62,548 | $62,548 |
2021 | $0 | $52,448 | $0 | $52,448 | $52,448 |
2020 | $0 | $52,448 | $0 | $52,448 | $52,448 |
2019 | $0 | $52,448 | $0 | $52,448 | $52,448 |
2018 | $0 | $60,000 | $0 | $60,000 | $60,000 |
2017 | $0 | $30,000 | $0 | $0 | $0 |
2016 | $0 | $30,000 | $0 | $0 | $0 |
2015 | $0 | $40,000 | $0 | $0 | $0 |
2014 | $0 | $40,000 | $0 | $0 | $0 |
2013 | $0 | $40,000 | $0 | $0 | $0 |
2012 | $0 | $40,000 | $0 | $0 | $0 |
2011 | $0 | $20,000 | $0 | $0 | $0 |
Deed and Sales History
1 | 08/15/2024 | SWD | Statutory Warranty Deed | Fielding, Megan M | Villa Ambriz, Vianey | | | $120,000.00 | 262479 | 1502605 |
2 | 12/01/2006 | TREA | TREA | GRANT COUNTY TREAUSRER | Fielding, Megan M | | | $0.00 | 200618971 | V: 0 Pg 0 |
3 | 08/20/1990 | SWD | Statutory Warranty Deed | T.D. INVESTMENT | SHEN, DUO-CHU | | | $18,000.00 | 199011734 | V: 788 Pg 241 |
4 | 01/25/1990 | Warranty D | Warranty D | Moses Lake Development | CHEN ETAL, LIN LIH HWA | | | $0.00 | 199000000 | V: 767 Pg 370 |
5 | 01/25/1990 | Warranty D | Warranty D | MOSES LAKE DEVELOPMENT CO | CHEN ETAL, LIN LIH HWA | | | $0.00 | 199000000 | V: 767 Pg 370 |
6 | 01/25/1990 | Warranty D | Warranty D | T.D. INVESTMENT | CHEN ETAL, LIN LIH HWA | | | $0.00 | 199000000 | V: 767 Pg 370 |
7 | 01/25/1990 | LC | LC | Moses Lake Development | T. D. INVESTMENTS | | | $316,400.00 | 199011479 | V: 756 Pg 336 |
  | |
8 | 01/18/1990 | SWD | Statutory Warranty Deed | Moses Lake Development | CHAO, SUH YEUN | | | $0.00 | 199000000 | |
9 | 01/18/1990 | SWD | Statutory Warranty Deed | T.D. INVESTMENT | CHAO, SUH YEUN | | | $0.00 | 199000000 | |
Payout Agreement
No payout information available.. |