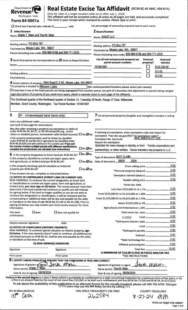
1 | 08/26/2024 | QCD | Quit Claim Deed | Main, Waldo T & Tina | AAA27 LLC | | | $0.00 | 262584 | 1502920 |
2 | 03/08/2024 | SWD | Statutory Warranty Deed | Dahlgren, Eric P & Michelle B | Main, Waldo T & Tina | | | $150,000.00 | 260828 | 1496693 |
3 | 10/05/2022 | SWD | Statutory Warranty Deed | Liu, Chao-Ching | Dahlgren, Eric P & Michelle B | | | $95,000.00 | 255726 | 1478874 |
4 | 03/23/1990 | WFD | Warranty Fulfillment Deed | Moses Lake Development Corp | T D Investment, Inc | | | | 0 | Bk 769 Pg 112 |
5 | 02/26/1990 | SWD | Statutory Warranty Deed | T.D. INVESTMENT INC | CHAO-CHING LIU | | | $20,000.00 | 199011507 | V: 760 Pg 503 |
6 | 10/17/1989 | Warranty D | Warranty D | Unknown seller | Unknown buyer | | | $0.00 | 198911384 | |
7 | 10/16/1989 | LC | LC | Moses Lake Development Corp | T D Investment, Inc | | | $584,000.00 | 113841 | Bk 743 Pg 354 |
  | |
8 | 03/01/1986 | QC | QC | | Unknown buyer | | | $1.00 | 198610256 | V: 550 Pg 389 |
  | |
9 | 07/01/1983 | LC | LC | | SAID, M H/NADIA ETAL | | | $120,000.00 | 198309387 | V: 435 Pg 90 |
  | |
10 | 07/01/1983 | LC | LC | | SAID, M H/NADIA ETAL | | | $120,000.00 | 198309387 | V: 435 Pg 90 |
  | |
11 | 05/01/1983 | QC | QC | | Unknown buyer | | | $1.00 | 198309315 | V: 426 Pg 425 |
  | |
12 | 04/01/1983 | LC | LC | | CHASE, ISIDOR R | | | $119,200.00 | 198309276 | V: 422 Pg 252 |
  | |
13 | 06/01/1982 | XX | XX | | Unknown buyer | | | $1.00 | 198209030 | V: 400 Pg 152 |