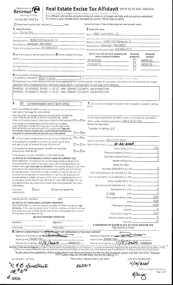
Property
Account |
Property ID: | 46906 | Abbreviated Legal Description: | SWNE 11 20 27 |
Parcel # / Geo ID: | 161639002 | Agent Code: | |
Type: | Real | | |
Tax Area: | 0088 - MOSES LAKE RURAL AREA | Land Use Code | - |
Open Space: | N | DFL | N |
Historic Property: | N | Remodel Property: | N |
Multi-Family Redevelopment: | N | | |
Township: | | Section: | |
Range: | | Legal Acres: | 42.5500 |
Location |
Address: | | Mapsco: | |
Neighborhood: | 259901 | Map ID: | |
Neighborhood CD: | 3408 |
Owner |
Name: | N & B Investment LLC | Owner ID: | 406572 |
Mailing Address: | 18364 NW Marseille Court Issaquah, WA 98027 | % Ownership: | 100.0000000000% |
| | Exemptions: | |
Taxes and Assessment Details
Property Tax Information as of
10/21/2025
Click on "Statement Details" to expand or collapse a tax statement.
* Please enter a valid date ** Please enter a valid date *
Statement Details |
| | TOTAL: | $0.00 | $0.00 | $0.00 | $0.00 | $0.00 | $0.00 |
|
| | $0.00 | $0.00 | $0.00 | $0.00 | $0.00 | $0.00 |
Values
(+) Improvement Homesite Value: | + | N/A | |
(+) Improvement Non-Homesite Value: | + | N/A | |
(+) Land Homesite Value: | + | N/A | |
(+) Land Non-Homesite Value: | + | N/A | Ag / Timber Use Value |
(+) Curr Use (HS): | + | N/A | N/A |
(+) Curr Use (NHS): | + | N/A | N/A |
| | -------------------------- | |
(=) Market Value: | = | N/A | |
(–) Productivity Loss: | – | N/A | |
| | -------------------------- | |
(=) Subtotal: | = | N/A | |
(+) Senior Appraised Value: | + | N/A | |
(+) Non-Senior Appraised Value: | + | N/A | |
| | -------------------------- | |
(=) Total Appraised Value: | = | N/A | |
(–) Senior Exemption Loss: | – | N/A | |
(–) Exemption Loss: | – | N/A | |
| | -------------------------- | |
(=) Taxable Value: | = | N/A | |
Taxing Jurisdiction
Owner: | N & B Investment LLC | | |
% Ownership: | 100.0000000000% | | |
Total Value: | N/A | | |
Tax Area: | 0088 - MOSES LAKE RURAL AREA |
CTYCE | County Current Expense | N/A | N/A | N/A | N/A | | |
MHEALTH | Mental Health | N/A | N/A | N/A | N/A | | |
VETERANS | Veterans Relief Fund | N/A | N/A | N/A | N/A | | |
FIRE15 | Fire 15 | N/A | N/A | N/A | N/A | | |
HOS03 | Hospital 03 | N/A | N/A | N/A | N/A | | |
HOS395GO | Hospital 03 - Bond | N/A | N/A | N/A | N/A | | |
LIBRARY | Library | N/A | N/A | N/A | N/A | | |
PORT10 | Port 10 | N/A | N/A | N/A | N/A | | |
ROADS | Roads | N/A | N/A | N/A | N/A | | |
SD161 | School 161 Moses Lake | N/A | N/A | N/A | N/A | | |
SD161BD | School 161 Moses Lake - Bond | N/A | N/A | N/A | N/A | | |
STATE1 | State School - Pt 1 | N/A | N/A | N/A | N/A | | |
STATE2 | State School - Pt 2 | N/A | N/A | N/A | N/A | | |
STATEREF | State School Refund | N/A | N/A | N/A | N/A | | |
| Total Tax Rate: | N/A | | | | | |
| | | | Taxes w/Current Exemptions: | N/A | | |
| | | | Taxes w/o Exemptions: | N/A | | |
Improvement / Building
Sketch
No sketches available for this property. |
Property Image
Land
1 | LgSA2 | Lrg SA 2 | 42.5500 | 1853478.00 | 0.00 | 0.00 | 0.00 | N/A | N/A |
Roll Value History
2025 | N/A | N/A | N/A | N/A | N/A |
2024 | $0 | $38,895 | $0 | $38,895 | $38,895 |
2023 | $0 | $38,895 | $0 | $38,895 | $38,895 |
2022 | $0 | $42,550 | $0 | $42,550 | $42,550 |
2021 | $0 | $38,295 | $0 | $38,295 | $38,295 |
2020 | $0 | $27,658 | $0 | $27,658 | $27,658 |
2019 | $0 | $36,875 | $0 | $36,875 | $36,875 |
2018 | $0 | $15,956 | $0 | $15,956 | $15,956 |
2017 | $0 | $15,955 | $0 | $0 | $0 |
2016 | $0 | $15,955 | $0 | $0 | $0 |
2015 | $0 | $21,275 | $0 | $0 | $0 |
2014 | $0 | $21,275 | $0 | $0 | $0 |
2013 | $0 | $21,275 | $0 | $0 | $0 |
2012 | $0 | $17,020 | $0 | $0 | $0 |
2011 | $0 | $17,020 | $0 | $0 | $0 |
Deed and Sales History
1 | 10/22/2024 | QCD | Quit Claim Deed | Hsu, Daniel | N & B Investment LLC | | | $0.00 | 263317 | 1505677 |
2 | 01/03/2012 | SWD | Statutory Warranty Deed | Yang Etal, Ming-Ti | Hsu, Daniel | | | $25,000.00 | 210056 | 1296986 |
3 | 04/16/1990 | SWD | Statutory Warranty Deed | T.D. INVESTMENTS | YANG ETAL, MING-TI | | | $14,000.00 | 199011568 | V: 768 Pg 481 |
4 | 03/23/1990 | WFD | Warranty Fulfillment Deed | Moses Lake Development Corp | T D Investment, Inc | | | | 0 | Bk 769 Pg 112 |
5 | 10/16/1989 | LC | LC | Moses Lake Development Corp | T D Investment, Inc | | | $584,000.00 | 113841 | Bk 743 Pg 354 |
  | |
6 | 06/30/1982 | QCD | Quit Claim Deed | Fait, Newell E & Helen B | Moses Lake Development Corp | | | | 90307 | Bk 400 Pg 152 |
7 | 06/15/1982 | SURV | SURV | Unknown seller | Moses Lake Development Co | | | | 0 | Bk 9 Pg 74 |
Payout Agreement
No payout information available.. |