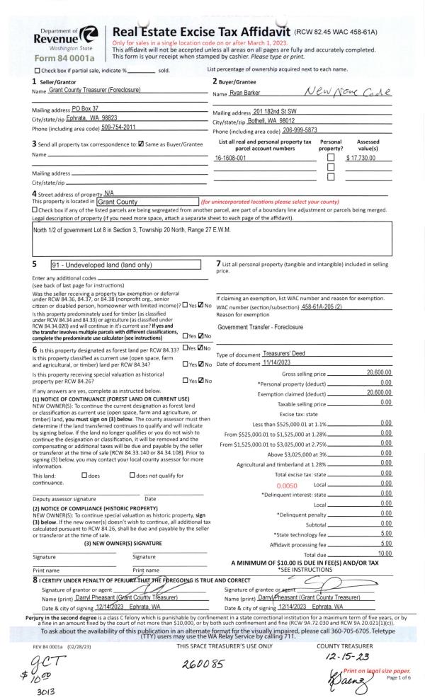
1 | 11/14/2023 | TRTD | TRTD | Lin Etal, Kueh Lan Chi | Barker, Ryan | | | $20,600.00 | 260085 | 1493988 |
2 | 11/28/1990 | SWD | Statutory Warranty Deed | T D Investment, Inc | Lin Etal, Kueh Lan Chi | | | $16,500.00 | 118499 | Bk 803 Pg 173 |
3 | 11/08/1990 | WFD | Warranty Fulfillment Deed | Moses Lake Development Corp | T D Investment, Inc | | | | 0 | Bk 802 Pg 144 |
4 | 05/01/1990 | LC | LC | Moses Lake Development Corp | TD Investment Inc | | | $226,560.00 | 115955 | Bk 772 Pg 147 |
  | |
5 | 05/01/1990 | SWD | Statutory Warranty Deed | Moses Lake Development Corp | T D Investment, Inc | | | | 0 | Rl 7 Pg 2162 |
6 | 01/04/1990 | SWD | Statutory Warranty Deed | Moses Lake Development Corp | T D Investment, Inc | | | | 0 | Rl 27 Pg 2432 |
7 | 09/18/1989 | FF | FF | DUNCAN, MAURICE W | Moses Lake Development Corp | | | $0.00 | 198911355 | V: 739 Pg 252 |
8 | 04/01/1984 | LC | LC | | Unknown buyer | | | $8,000.00 | 198409763 | V: 479 Pg 174 |
9 | 04/01/1983 | AF | AF | | Moses Lake Development Corp | | | $1.00 | 198300000 | V: 426 Pg 426 |
  | |
10 | 07/01/1982 | LC | LC | | DANFORTH, O H/DIANE ETAL | | | $16,900.00 | 198209116 | V: 407 Pg 287 |