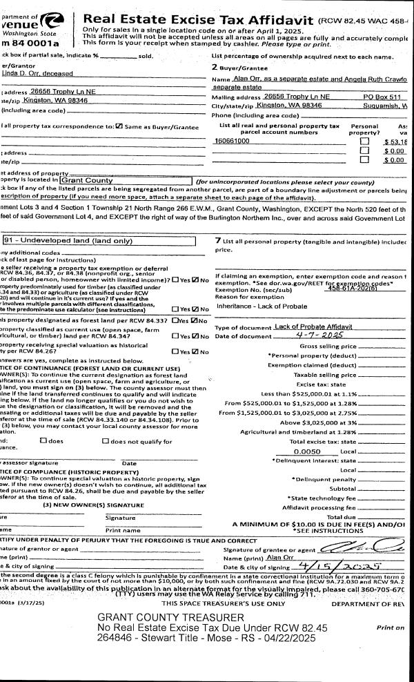
1 | 04/07/2025 | AFF OF HEI | Affidavit of Heirship | Orr Est, Linda Dorris | Orr Etal, Alan | | | $0.00 | 264846 | 1511204 |
2 | 03/14/2025 | DC | Death Certificate | | Orr Est, Linda Dorris | | | | 0 | |
3 | 09/19/2022 | QCD | Quit Claim Deed | Larson Tr, Doris L | Larson Etal, Doris L | | | | 255587 | 1478288 |
4 | 09/19/2022 | QCD | Quit Claim Deed | Larson Tr, Doris L | Orr Etal, Linda D | | | | 255587 | 1478288 |
5 | 09/19/2022 | QCD | Quit Claim Deed | Larson Tr, Doris L | Larson Tr, Doris L | | | | 255586 | 1478287 |
6 | 08/27/2004 | PRD | Personal Representatives Deed | Larson Est, Doris P | Larson Tr Etal, Doris L | | | | 177553 | 1155459 |
7 | 12/31/1985 | PRD | Personal Representatives Deed | Sakai Est, Toshio Paul | Sakai Etal, Kimiko R | | | | 101941 | Bk 538 Pg 403 |
8 | 03/21/1985 | QCD | Quit Claim Deed | Larson, Henry K | Larson, Doris P | | | | 99329 | Bk 503 Pg 545 |
9 | 06/29/1976 | SWD | Statutory Warranty Deed | Edwards, Robert L & Jane I | Larson Etal, Henry K & Doris P | | | $7,585.00 | 76269 | Bk 204 Pg 24 |
10 | 02/08/1973 | Deed | Deed | USA | Edwards, Robert L & Jane I | | | $5,100.00 | 0 | Bk 120 Pg 26 |
11 | 04/23/1947 | WD | Warranty Deed | Flinn, B B | USA | | | $2,723.00 | 0 | Vol 75 Pg 542 |
  | |