Property
Account |
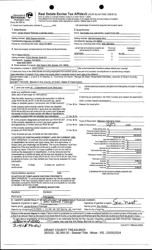
Property ID: | 44862 | Abbreviated Legal Description: | GOV LOTS 1 TO 3 2 20 26 |
Parcel # / Geo ID: | 160573008 | Agent Code: | |
Type: | Real | | |
Tax Area: | 0093 - EPHRATA RURAL AREA | Land Use Code | - |
Open Space: | N | DFL | N |
Historic Property: | N | Remodel Property: | N |
Multi-Family Redevelopment: | N | | |
Township: | | Section: | |
Range: | | Legal Acres: | 54.1900 |
Location |
Address: | | Mapsco: | |
Neighborhood: | 179902 | Map ID: | |
Neighborhood CD: | 3409 |
Owner |
Name: | Molitor, Dan & Jada | Owner ID: | 313640 |
Mailing Address: | 559 Morningstar Blvd Ephrata, WA 98823 | % Ownership: | 100.0000000000% |
| | Exemptions: | |
Taxes and Assessment Details
Values
(+) Improvement Homesite Value: | + | N/A | |
(+) Improvement Non-Homesite Value: | + | N/A | |
(+) Land Homesite Value: | + | N/A | |
(+) Land Non-Homesite Value: | + | N/A | Ag / Timber Use Value |
(+) Curr Use (HS): | + | N/A | N/A |
(+) Curr Use (NHS): | + | N/A | N/A |
| | -------------------------- | |
(=) Market Value: | = | N/A | |
(–) Productivity Loss: | – | N/A | |
| | -------------------------- | |
(=) Subtotal: | = | N/A | |
(+) Senior Appraised Value: | + | N/A | |
(+) Non-Senior Appraised Value: | + | N/A | |
| | -------------------------- | |
(=) Total Appraised Value: | = | N/A | |
(–) Senior Exemption Loss: | – | N/A | |
(–) Exemption Loss: | – | N/A | |
| | -------------------------- | |
(=) Taxable Value: | = | N/A | |
Taxing Jurisdiction
Owner: | Molitor, Dan & Jada | | |
% Ownership: | 100.0000000000% | | |
Total Value: | N/A | | |
Tax Area: | 0093 - EPHRATA RURAL AREA |
MHEALTH | Mental Health | N/A | N/A | N/A | N/A | | |
VETERANS | Veterans Relief Fund | N/A | N/A | N/A | N/A | | |
FIRE13 | Fire 13 | N/A | N/A | N/A | N/A | | |
HOS03 | Hospital 03 | N/A | N/A | N/A | N/A | | |
HOS395GO | Hospital 03 - Bond | N/A | N/A | N/A | N/A | | |
LIBRARY | Library | N/A | N/A | N/A | N/A | | |
PORT09 | Port 09 | N/A | N/A | N/A | N/A | | |
ROADS | Roads | N/A | N/A | N/A | N/A | | |
SD165 | School 165 Ephrata | N/A | N/A | N/A | N/A | | |
SD165BD | School 165 Ephrata - Bond | N/A | N/A | N/A | N/A | | |
SD165CP | School 165 Ephrata - Cap Project
| N/A | N/A | N/A | N/A | | |
SD165TRANS | School 165 Ephrata - Transportation
| N/A | N/A | N/A | N/A | | |
STATE1 | State School - Pt 1 | N/A | N/A | N/A | N/A | | |
STATE2 | State School - Pt 2 | N/A | N/A | N/A | N/A | | |
STATEREF | State School Refund | N/A | N/A | N/A | N/A | | |
CTYCE | County Current Expense | N/A | N/A | N/A | N/A | | |
| Total Tax Rate: | N/A | | | | | |
| | | | Taxes w/Current Exemptions: | N/A | | |
| | | | Taxes w/o Exemptions: | N/A | | |
Improvement / Building
Sketch
No sketches available for this property. |
Property Image
Land
1 | EPDRYPAS-2 | Eph DryPasture 2 | 54.1900 | 2360516.40 | 0.00 | 0.00 | 0.00 | N/A | N/A |
Roll Value History
2025 | N/A | N/A | N/A | N/A | N/A |
2024 | $0 | $54,190 | $0 | $54,190 | $54,190 |
2023 | $0 | $54,190 | $0 | $54,190 | $54,190 |
2022 | $0 | $54,190 | $0 | $54,190 | $54,190 |
2021 | $0 | $48,771 | $0 | $48,771 | $48,771 |
2020 | $0 | $35,224 | $0 | $35,224 | $35,224 |
2019 | $0 | $41,996 | $0 | $41,996 | $41,996 |
2018 | $0 | $60,964 | $0 | $60,964 | $60,964 |
2017 | $0 | $36,580 | $0 | $0 | $0 |
2016 | $0 | $36,580 | $0 | $0 | $0 |
2015 | $0 | $48,770 | $0 | $0 | $0 |
2014 | $0 | $48,770 | $0 | $0 | $0 |
2013 | $0 | $48,770 | $0 | $0 | $0 |
2012 | $0 | $48,770 | $0 | $0 | $0 |
2011 | $0 | $35,225 | $0 | $0 | $0 |
Deed and Sales History
1 | 02/05/2024 | SWD | Statutory Warranty Deed | Flickinger, James Edward | Molitor, Dan & Jada | | | $185,000.00 | 260520 | 1495622 |
2 | 08/31/2023 | QCD | Quit Claim Deed | Uhl, Gloria A | Flickinger, James Edward | | | | 259328 | 1491334 |
3 | 03/19/2001 | DEAT | DEAT | SPURBECK, ELIZABETH J | | | | $0.00 | 200100000 | V: 0 Pg 0 |
4 | 03/19/2001 | DEAT | DEAT | SPURBECK, ELIZABETH J | BOYD, JUDY | | | $0.00 | 200100000 | V: 0 Pg 0 |
5 | 03/19/2001 | DEAT | DEAT | SPURBECK, ELIZABETH J | REHN, BERTHA M | | | $0.00 | 200100000 | V: 0 Pg 0 |
6 | 03/19/2001 | DEAT | DEAT | SPURBECK, ELIZABETH J | SAUER, ISOBEL | | | $0.00 | 200100000 | V: 0 Pg 0 |
7 | 03/19/2001 | DEAT | DEAT | UHL, DONALD PAUL | | | | $0.00 | 200100000 | V: 0 Pg 0 |
8 | 03/19/2001 | DEAT | DEAT | UHL, DONALD PAUL | BOYD, JUDY | | | $0.00 | 200100000 | V: 0 Pg 0 |
9 | 03/19/2001 | DEAT | DEAT | UHL, DONALD PAUL | REHN, BERTHA M | | | $0.00 | 200100000 | V: 0 Pg 0 |
10 | 03/19/2001 | DEAT | DEAT | UHL, DONALD PAUL | SAUER, ISOBEL | | | $0.00 | 200100000 | V: 0 Pg 0 |
11 | 10/09/1990 | SWD | Statutory Warranty Deed | Moses Lake Development | T.D. INVESTMENT | | | $16,000.00 | 199011792 | V: 795 Pg 382 |
  | |
12 | 05/01/1989 | Community | Community | | Petersen, Gerald E & Dorothy S | | | $0.00 | 198900000 | V: 721 Pg 248 |
13 | 04/01/1987 | Sellers As | Sellers As | | Unknown buyer | | | $0.00 | 198709469 | V: 618 Pg 373 |
14 | 01/01/1987 | Sellers As | Sellers As | | Unknown buyer | | | $0.00 | 198709469 | V: 618 Pg 371 |
15 | 07/01/1983 | LC | LC | | UHL, GLORIA A/DONALD R | | | $16,900.00 | 198309469 | V: 443 Pg 517 |
16 | 01/01/1983 | AF | AF | | Moses Lake Development Corp | | | $1.00 | 198300000 | V: 421 Pg 25 |
  | |
17 | 02/01/1982 | LC | LC | | HOWARD, R D/VANDY L | | | $22,500.00 | 198209088 | V: 404 Pg 721 |
18 | 01/01/1982 | QC | QC | | M L DEVELOPMENT CORPORATION | | | $1.00 | 198208972 | V: 392 Pg 285 |
  | |
19 | 01/17/1977 | WILL | WILL | | | | | $0.00 | 197700000 | V: 0 Pg 0 |
Payout Agreement
No payout information available.. |