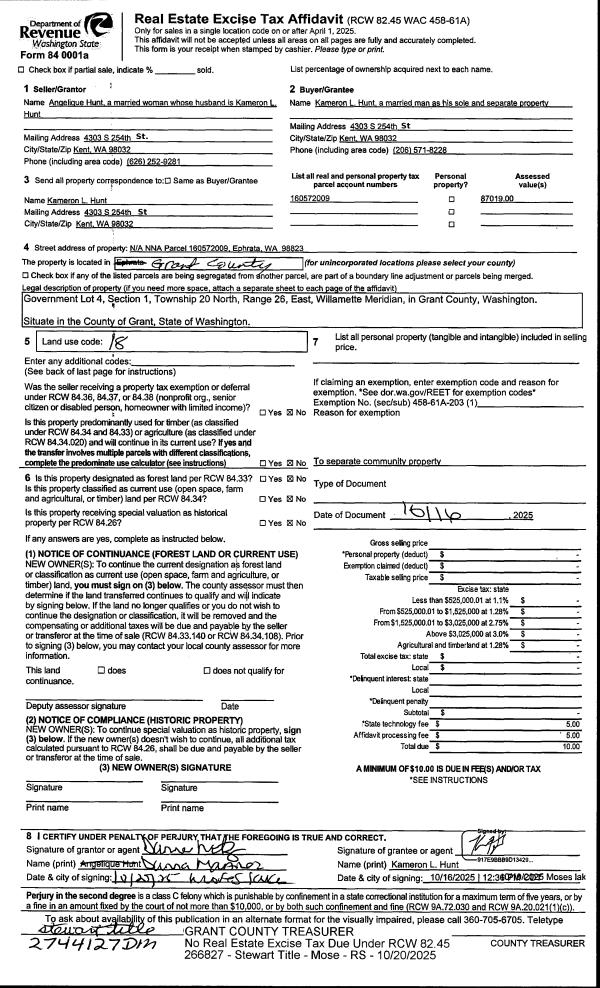
| 1 | 10/16/2025 | QCD | Quit Claim Deed | Hunt, Angelique | Hunt, Kameron L | | | $0.00 | 266827 | 1518429 |
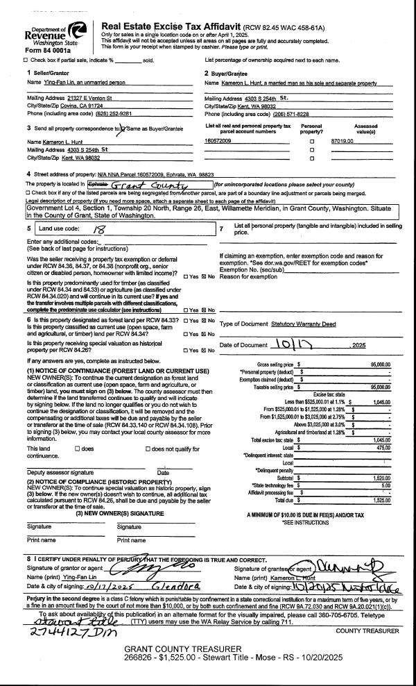
| 2 | 10/17/2025 | SWD | Statutory Warranty Deed | Lin, Ying-Fan | Hunt, Kameron L | | | $95,000.00 | 266826 | 1518428 |
| 3 | 11/02/1990 | SWD | Statutory Warranty Deed | T.D. INVESTMENT | LIN, YING-FAN | | | $12,500.00 | 199011819 | V: 799 Pg 276 |
| 4 | 02/01/1984 | AF | AF | | Moses Lake Development Corp | | | $1.00 | 198409638 | V: 466 Pg 332 |
| 5 | 11/01/1983 | LC | LC | | HINDMAN, ROBERT B/KATHLEEN | | | $21,900.00 | 198309469 | V: 443 Pg 514 |
| 6 | 08/01/1982 | AF | AF | | Unknown buyer | | | $1.00 | 198200000 | V: 406 Pg 83 |
| 7 | 02/01/1982 | LC | LC | | STOKER, S J\W L/BARBARA J | | | $22,500.00 | 198208987 | V: 394 Pg 592 |
| 8 | 01/01/1982 | QC | QC | | M L DEVELOPMENT CORPORATION | | | $1.00 | 198208972 | V: 392 Pg 285 |
|   | |