Property
Account |
| Property ID: | 42743 | Abbreviated Legal Description: | TX# 13756 IN S1/2 9 21 24 TAX# 13756 THE SOUTH HALF OF THE SOUTHEAST QUARTER OF THE NORTHEAST QUARTER OF THE SOUTHWEST QUARTER; THE SOUTHEAST QUARTER OF THE SOUTHWEST QUARTER OF THE NORTHEAST QUARTER OF THE SOUTHWEST QUARTER; THE SOUTHWEST QUART |
| Parcel # / Geo ID: | 151187005 | Agent Code: | |
| Type: | Real | | |
| Tax Area: | 0024 - QUINCY RURAL AREA | Land Use Code | - |
| Open Space: | N | DFL | N |
| Historic Property: | N | Remodel Property: | N |
| Multi-Family Redevelopment: | N | | |
| Township: | | Section: | |
| Range: | | Legal Acres: | 195.0000 |
Location |
| Address: | | Mapsco: | |
| Neighborhood: | 289901 | Map ID: | |
| Neighborhood CD: | 3456 |
Owner |
| Name: | State of Washington Department of Fish & Wildlife | Owner ID: | 339628 |
| Mailing Address: | 600 Capitol Way North 600 Capital Way N Olympia, WA 98501-1076 | % Ownership: | 100.0000000000% |
| | | Exemptions: | DOR |
Taxes and Assessment Details
Property Tax Information as of
02/14/2026
Click on "Statement Details" to expand or collapse a tax statement.
* Please enter a valid date ** Please enter a valid date *
Statement Details |
| | TOTAL: | $0.00 | $0.00 | $0.00 | $0.00 | $0.00 | $0.00 |
|
| | $0.00 | $0.00 | $0.00 | $0.00 | $0.00 | $0.00 |
Values
| (+) Improvement Homesite Value: | + | N/A | |
| (+) Improvement Non-Homesite Value: | + | N/A | |
| (+) Land Homesite Value: | + | N/A | |
| (+) Land Non-Homesite Value: | + | N/A | Ag / Timber Use Value |
| (+) Curr Use (HS): | + | N/A | N/A |
| (+) Curr Use (NHS): | + | N/A | N/A |
| | | -------------------------- | |
| (=) Market Value: | = | N/A | |
| (–) Productivity Loss: | – | N/A | |
| | | -------------------------- | |
| (=) Subtotal: | = | N/A | |
| (+) Senior Appraised Value: | + | N/A | |
| (+) Non-Senior Appraised Value: | + | N/A | |
| | | -------------------------- | |
| (=) Total Appraised Value: | = | N/A | |
| (–) Senior Exemption Loss: | – | N/A | |
| (–) Exemption Loss: | – | N/A | |
| | | -------------------------- | |
| (=) Taxable Value: | = | N/A | |
Taxing Jurisdiction
| Owner: | State of Washington Department of Fish & Wildlife | | |
| % Ownership: | 100.0000000000% | | |
| Total Value: | N/A | | |
| Tax Area: | 0024 - QUINCY RURAL AREA |
| CEM1 | Cemetery 1 | N/A | N/A | N/A | N/A | | |
| CEM1SP | Cemetery 1 - Special | N/A | N/A | N/A | N/A | | |
| CTYCE | County Current Expense | N/A | N/A | N/A | N/A | | |
| MHEALTH | Mental Health | N/A | N/A | N/A | N/A | | |
| VETERANS | Veterans Relief Fund | N/A | N/A | N/A | N/A | | |
| FIRE03 | Fire 03 | N/A | N/A | N/A | N/A | | |
| FIRE03EMS | Fire 03 - E M S | N/A | N/A | N/A | N/A | | |
| FIRE03SP | Fire 03 - Special | N/A | N/A | N/A | N/A | | |
| HOS02 | Hospital 02 | N/A | N/A | N/A | N/A | | |
| HOS02SP | Hospital 02 - Special | N/A | N/A | N/A | N/A | | |
| LIBRARY | Library | N/A | N/A | N/A | N/A | | |
| PORT01 | Port 01 | N/A | N/A | N/A | N/A | | |
| ROADS | Roads | N/A | N/A | N/A | N/A | | |
| SD144 | School 144 Quincy | N/A | N/A | N/A | N/A | | |
| SD144BD | School 144 Quincy - Bond | N/A | N/A | N/A | N/A | | |
| STATE1 | State School - Pt 1 | N/A | N/A | N/A | N/A | | |
| STATE2 | State School - Pt 2 | N/A | N/A | N/A | N/A | | |
| STATEREF | State School Refund | N/A | N/A | N/A | N/A | | |
| 661-001-01 | Port 1 IDD | N/A | N/A | N/A | N/A | | |
| QVRPD | Quincy Valley Regional Parks District | N/A | N/A | N/A | N/A | | |
| QVRPD | Quincy Valley Regional Parks District | N/A | N/A | N/A | N/A | | |
| | Total Tax Rate: | N/A | | | | | |
| | | | | Taxes w/Current Exemptions: | N/A | | |
| | | | | Taxes w/o Exemptions: | N/A | | |
Improvement / Building
Sketch
| No sketches available for this property. |
Property Image
Land
| 1 | QUDPAS-3 | Qu DryPasture 3 | 195.0000 | 8494200.00 | 0.00 | 0.00 | 0.00 | N/A | N/A |
Roll Value History
| 2026 | N/A | N/A | N/A | N/A | N/A |
| 2025 | $0 | $134,750 | $0 | $134,750 | $0 |
| 2024 | $0 | $134,750 | $0 | $134,750 | $0 |
| 2023 | $0 | $134,750 | $0 | $134,750 | $0 |
| 2022 | $0 | $165,750 | $0 | $165,750 | $0 |
| 2021 | $0 | $156,000 | $0 | $156,000 | $0 |
| 2020 | $0 | $97,500 | $0 | $97,500 | $0 |
| 2019 | $0 | $87,750 | $0 | $87,750 | $0 |
| 2018 | $0 | $48,750 | $0 | $48,750 | $0 |
| 2017 | $0 | $48,750 | $0 | $0 | $0 |
| 2016 | $0 | $48,750 | $0 | $0 | $0 |
| 2015 | $0 | $48,750 | $0 | $0 | $0 |
| 2014 | $0 | $39,290 | $0 | $0 | $0 |
| 2013 | $0 | $39,290 | $0 | $0 | $0 |
| 2012 | $0 | $39,290 | $0 | $0 | $0 |
Deed and Sales History
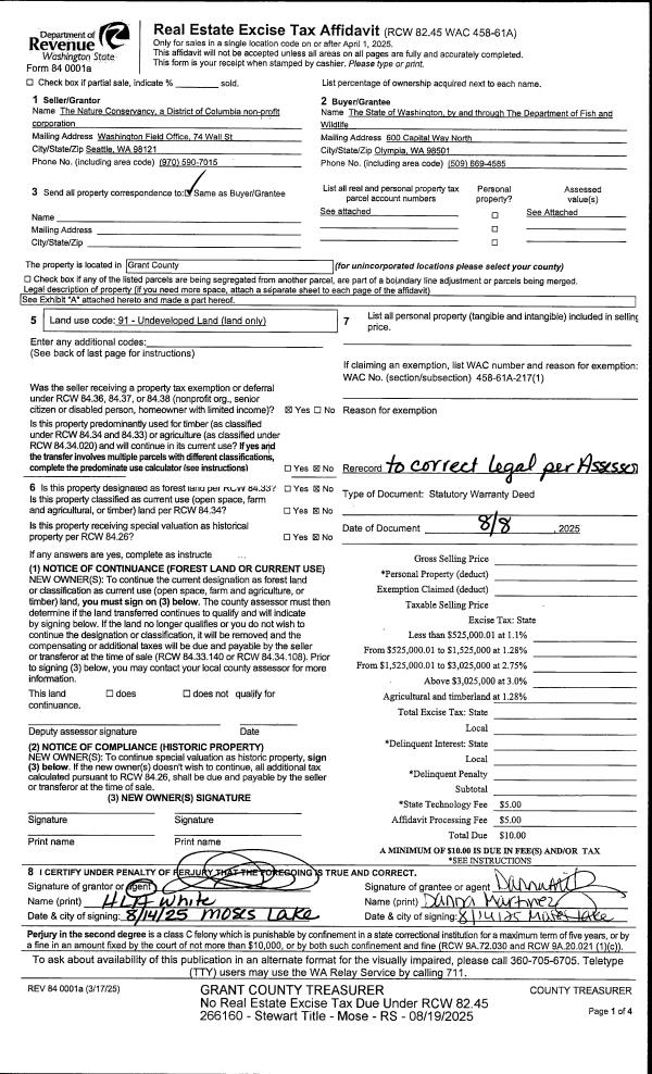
| 1 | 08/08/2025 | SWD | Statutory Warranty Deed | Nature Conservancy | State of Washington Department of Fish & Wildlife | | | $0.00 | 266160 | 1515926 |
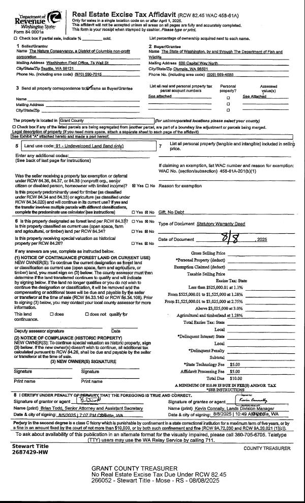
| 2 | 08/08/2025 | SWD | Statutory Warranty Deed | Nature Conservancy | State of Washington Department of Fish & Wildlife | | | $0.00 | 266052 | 1515505 |
| 3 | 10/11/2000 | RECU | RECU | | Unknown buyer | | | $0.00 | 200000000 | V: 0 Pg 0 |
| 4 | 09/08/2000 | SWD | Statutory Warranty Deed | BORUFF FAMILY | NATURE CONSERVANCY | | | $321,000.00 | 200015979 | V: 0 Pg 0 |
|   | |
| 5 | 12/25/1982 | SWD | Statutory Warranty Deed | Boruff, F F & Calista | Boruff Family LLC | | | | 91650 | Bk 411 Pg 383 |
Payout Agreement
| No payout information available.. |