Property
Account |
Property ID: | 42743 | Abbreviated Legal Description: | TX# 13756 IN S1/2 9 21 24 TAX# 13756 THE SOUTH HALF OF THE SOUTHEAST QUARTER OF THE NORTHEAST QUARTER OF THE SOUTHWEST QUARTER; THE SOUTHEAST QUARTER OF THE SOUTHWEST QUARTER OF THE NORTHEAST QUARTER OF THE SOUTHWEST QUARTER; THE SOUTHWEST QUART |
Parcel # / Geo ID: | 151187005 | Agent Code: | |
Type: | Real | | |
Tax Area: | 0024 - QUINCY RURAL AREA | Land Use Code | - |
Open Space: | N | DFL | N |
Historic Property: | N | Remodel Property: | N |
Multi-Family Redevelopment: | N | | |
Township: | | Section: | |
Range: | | Legal Acres: | 195.0000 |
Location |
Address: | | Mapsco: | |
Neighborhood: | 289901 | Map ID: | |
Neighborhood CD: | 3456 |
Owner |
Name: | State of Washington Department of Fish & Wildlife | Owner ID: | 339628 |
Mailing Address: | 600 Capitol Way North 600 Capital Way N Olympia, WA 98501-1076 | % Ownership: | 100.0000000000% |
| | Exemptions: | DOR |
Taxes and Assessment Details
Property Tax Information as of
10/21/2025
Click on "Statement Details" to expand or collapse a tax statement.
* Please enter a valid date ** Please enter a valid date *
Statement Details |
| | TOTAL: | $0.00 | $0.00 | $0.00 | $0.00 | $0.00 | $0.00 |
|
| | $0.00 | $0.00 | $0.00 | $0.00 | $0.00 | $0.00 |
Values
(+) Improvement Homesite Value: | + | N/A | |
(+) Improvement Non-Homesite Value: | + | N/A | |
(+) Land Homesite Value: | + | N/A | |
(+) Land Non-Homesite Value: | + | N/A | Ag / Timber Use Value |
(+) Curr Use (HS): | + | N/A | N/A |
(+) Curr Use (NHS): | + | N/A | N/A |
| | -------------------------- | |
(=) Market Value: | = | N/A | |
(–) Productivity Loss: | – | N/A | |
| | -------------------------- | |
(=) Subtotal: | = | N/A | |
(+) Senior Appraised Value: | + | N/A | |
(+) Non-Senior Appraised Value: | + | N/A | |
| | -------------------------- | |
(=) Total Appraised Value: | = | N/A | |
(–) Senior Exemption Loss: | – | N/A | |
(–) Exemption Loss: | – | N/A | |
| | -------------------------- | |
(=) Taxable Value: | = | N/A | |
Taxing Jurisdiction
Owner: | State of Washington Department of Fish & Wildlife | | |
% Ownership: | 100.0000000000% | | |
Total Value: | N/A | | |
Tax Area: | 0024 - QUINCY RURAL AREA |
CEM1 | Cemetery 1 | N/A | N/A | N/A | N/A | | |
CEM1SP | Cemetery 1 - Special | N/A | N/A | N/A | N/A | | |
CTYCE | County Current Expense | N/A | N/A | N/A | N/A | | |
MHEALTH | Mental Health | N/A | N/A | N/A | N/A | | |
VETERANS | Veterans Relief Fund | N/A | N/A | N/A | N/A | | |
FIRE03 | Fire 03 | N/A | N/A | N/A | N/A | | |
FIRE03EMS | Fire 03 - E M S | N/A | N/A | N/A | N/A | | |
FIRE03SP | Fire 03 - Special | N/A | N/A | N/A | N/A | | |
HOS02 | Hospital 02 | N/A | N/A | N/A | N/A | | |
HOS02SP | Hospital 02 - Special | N/A | N/A | N/A | N/A | | |
LIBRARY | Library | N/A | N/A | N/A | N/A | | |
PORT01 | Port 01 | N/A | N/A | N/A | N/A | | |
ROADS | Roads | N/A | N/A | N/A | N/A | | |
SD144 | School 144 Quincy | N/A | N/A | N/A | N/A | | |
SD144BD | School 144 Quincy - Bond | N/A | N/A | N/A | N/A | | |
STATE1 | State School - Pt 1 | N/A | N/A | N/A | N/A | | |
STATE2 | State School - Pt 2 | N/A | N/A | N/A | N/A | | |
STATEREF | State School Refund | N/A | N/A | N/A | N/A | | |
661-001-01 | Port 1 IDD | N/A | N/A | N/A | N/A | | |
QVRPD | Quincy Valley Regional Parks District | N/A | N/A | N/A | N/A | | |
QVRPD | Quincy Valley Regional Parks District | N/A | N/A | N/A | N/A | | |
| Total Tax Rate: | N/A | | | | | |
| | | | Taxes w/Current Exemptions: | N/A | | |
| | | | Taxes w/o Exemptions: | N/A | | |
Improvement / Building
Sketch
No sketches available for this property. |
Property Image
Land
1 | QUDPAS-3 | Qu DryPasture 3 | 195.0000 | 8494200.00 | 0.00 | 0.00 | 0.00 | N/A | N/A |
Roll Value History
2025 | N/A | N/A | N/A | N/A | N/A |
2024 | $0 | $134,750 | $0 | $134,750 | $0 |
2023 | $0 | $134,750 | $0 | $134,750 | $0 |
2022 | $0 | $165,750 | $0 | $165,750 | $0 |
2021 | $0 | $156,000 | $0 | $156,000 | $0 |
2020 | $0 | $97,500 | $0 | $97,500 | $0 |
2019 | $0 | $87,750 | $0 | $87,750 | $0 |
2018 | $0 | $48,750 | $0 | $48,750 | $0 |
2017 | $0 | $48,750 | $0 | $0 | $0 |
2016 | $0 | $48,750 | $0 | $0 | $0 |
2015 | $0 | $48,750 | $0 | $0 | $0 |
2014 | $0 | $39,290 | $0 | $0 | $0 |
2013 | $0 | $39,290 | $0 | $0 | $0 |
2012 | $0 | $39,290 | $0 | $0 | $0 |
2011 | $0 | $39,290 | $0 | $0 | $0 |
Deed and Sales History
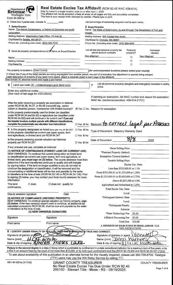
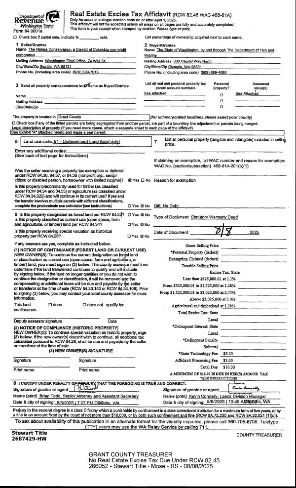
1 | 08/08/2025 | SWD | Statutory Warranty Deed | Nature Conservancy | State of Washington Department of Fish & Wildlife | | | $0.00 | 266160 | 1515926 |
2 | 08/08/2025 | SWD | Statutory Warranty Deed | Nature Conservancy | State of Washington Department of Fish & Wildlife | | | $0.00 | 266052 | 1515505 |
3 | 10/11/2000 | RECU | RECU | | Unknown buyer | | | $0.00 | 200000000 | V: 0 Pg 0 |
4 | 09/08/2000 | SWD | Statutory Warranty Deed | BORUFF FAMILY | NATURE CONSERVANCY | | | $321,000.00 | 200015979 | V: 0 Pg 0 |
  | |
5 | 12/25/1982 | SWD | Statutory Warranty Deed | Boruff, F F & Calista | Boruff Family LLC | | | | 91650 | Bk 411 Pg 383 |
Payout Agreement
No payout information available.. |