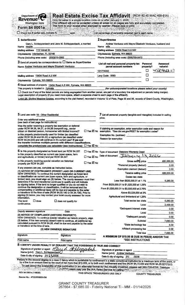
| 1 | 01/13/2026 | SWD | Statutory Warranty Deed | Schleppenbach, Gary L & Jane M | Verduzco, Andres & Mayra Elizabeth | | | $480,000.00 | 267664 | 1521754 |
| 2 | 04/27/2020 | SWD | Statutory Warranty Deed | Kwak, Chan Kong & Yun Wha Kim | Schleppenbach, Gary L & Jane M | | | $55,000.00 | 243258 | 1425849 |
| 3 | 11/06/2014 | QCD | Quit Claim Deed | Lai, Mu Tsun & Amy Lee | Kwak, Chan Kon & Yun Wha Kim | | | | 220400 | 1340937 |
| 4 | 11/26/2007 | SWD | Statutory Warranty Deed | CHEN, SHIH CHANG/YU MEI | Kwak, Chan Kon & Yun Wha Kim | | | $108,000.00 | 200719506 | V: 0 Pg 0 |
|   | |
| 5 | 09/10/1990 | | | Moses Lake Development Corp | T D Investment, Inc | | | | 0 | Bk 795 Pg 135 |
| 6 | 04/17/1990 | SWD | Statutory Warranty Deed | T D INVESTMENT INC | CHEN, SHIH-CHANG | | | $22,000.00 | 199011570 | V: 768 Pg 519 |
| 7 | 11/13/1989 | Warranty D | Warranty D | MOSES LAKE DEVELOP CORP | BARTLING, ANTHONY L/CATHY M | | | $0.00 | 198900000 | |
| 8 | 11/13/1989 | Warranty D | Warranty D | MOSES LAKE DEVELOP CORP | DIRK, WADE | | | $0.00 | 198900000 | |
| 9 | 11/13/1989 | Warranty D | Warranty D | MOSES LAKE DEVELOP CORP | HUBBARD, RICHARD D/CYNDA R | | | $0.00 | 198900000 | |
| 10 | 11/13/1989 | Warranty D | Warranty D | MOSES LAKE DEVELOP CORP | LANG, ARTHUR A/NANCY I | | | $0.00 | 198900000 | |
| 11 | 11/13/1989 | Warranty D | Warranty D | MOSES LAKE DEVELOP CORP | MULLEN, LOYD L/KAREN S | | | $0.00 | 198900000 | |
| 12 | 11/13/1989 | Warranty D | Warranty D | MOSES LAKE DEVELOP CORP | RIGSBY JR, FLOYD W/GISELA A | | | $0.00 | 198900000 | |
| 13 | 11/13/1989 | Warranty D | Warranty D | MOSES LAKE DEVELOP CORP | RODEBACK, KEITH/MELODIE | | | $0.00 | 198900000 | |
| 14 | 11/13/1989 | Warranty D | Warranty D | MOSES LAKE DEVELOP CORP | SAUVE, ROBERT/SAUVE | | | $0.00 | 198900000 | |
| 15 | 11/13/1989 | Warranty D | Warranty D | MOSES LAKE DEVELOP CORP | SNELSON, JAMES A/MARION G | | | $0.00 | 198900000 | |
| 16 | 11/13/1989 | Warranty D | Warranty D | MOSES LAKE DEVELOP CORP | STETNER BROTHERS | | | $0.00 | 198900000 | |
| 17 | 11/13/1989 | Warranty D | Warranty D | MOSES LAKE DEVELOP CORP | T D INVESTMENT INC | | | $0.00 | 198900000 | |
| 18 | 11/13/1989 | Warranty D | Warranty D | MOSES LAKE DEVELOP CORP | T.D. INVESTMENT | | | $0.00 | 198900000 | |
| 19 | 11/13/1989 | Warranty D | Warranty D | MOSES LAKE DEVELOP CORP | TRASK JR, ROBERT M/SONIA M | | | $0.00 | 198900000 | |
| 20 | 11/13/1989 | Warranty D | Warranty D | MOSES LAKE DEVELOP CORP | Triple C Land Company | | | $0.00 | 198900000 | |
| 21 | 11/13/1989 | Warranty D | Warranty D | MOSES LAKE DEVELOP CORP | WILSON, MERRILL J/JOYCE L | | | $0.00 | 198900000 | |
| 22 | 11/13/1989 | Warranty D | Warranty D | MOSES LAKE DEVELOP CORP | Wood, Kenneth M & Mary E | | | $0.00 | 198900000 | |
| 23 | 11/05/1989 | LC | LC | Moses Lake Development Corp | T D Investment, Inc | | | $178,250.00 | 114085 | Bk 746 Pg 482 |
|   |
| 37067 | 13397 NW DRUMHELLER RD
EPHRATA RURAL, | LOT 5 AIRPORT RANCHES NO. 1 |
| 37069 | 13309 NW DRUMHELLER RD
EPHRATA RURAL, | LOT 7 AIRPORT RANCHES NO. 1 |
| 37070 | 13273 NW DRUMHELLER RD
EPHRATA RURAL, | LOT 8 AIRPORT RANCHES NO. 1 |
| 37071 | 13235 NW DRUMHELLER RD
EPHRATA RURAL, | LOT 9 AIRPORT RANCHES NO. 1 |
| 37072 | 13201 NW DRUMHELLER RD
EPHRATA RURAL, | LOT 10 AIRPORT RANCHES NO. 1 |
| 37073 | 13163 NW DRUMHELLER RD
EPHRATA RURAL, | LOT 11 AIRPORT RANCHES NO. 1 |
| 37078 | 13056 NW DRUMHELLER RD
EPHRATA RURAL, | LOT 16 AIRPORT RANCHES NO. 1 |
| 37081 | 13270 NW DRUMHELLER RD
EPHRATA RURAL, | LOT 19 AIRPORT RANCHES NO. 1 |
| 37093 | 13162 NW RD A
EPHRATA RURAL, | LOT 28 AIRPORT RANCHES NO. 1 |
| 37094 | 13236 NW RD A
EPHRATA RURAL, | LOT 29 AIRPORT RANCHES NO. 1 |
| 37098 | 13758 NW DRUMHELLER RD
EPHRATA RURAL, | LOT 32 AIRPORT RANCHES NO. 1 |
| 37128 | 13389 NW RD A.3
EPHRATA RURAL, | LOT 1 SKYLINE MEADOW ESTATES |
| 37129 | 13299 NW RD A.3
EPHRATA RURAL, | LOT 2 SKYLINE MEADOW ESTATES |
| 37130 | 13223 NW RD A.3
EPHRATA RURAL, | LOT 3 SKYLINE MEADOW ESTATES |
| 37131 | 13151 NW RD A.3
EPHRATA RURAL, | LOT 4 SKYLINE MEADOW ESTATES |
| 37139 | 13288 NW RD A.3
EPHRATA RURAL, | LOT 11 SKYLINE MEADOW ESTATES |
| 37140 | 13364 NW RD A.3
EPHRATA RURAL, | LOT 12 SKYLINE MEADOW ESTATES |
| 37141 | 13436 NW RD A.3
EPHRATA RURAL, | LOT 13 SKYLINE MEADOW ESTATES |
| 37142 | 13549 NW RD A.5
EPHRATA RURAL, | LOT 14 SKYLINE MEADOW ESTATES |
| 37143 | 13463 NW RD A.5
EPHRATA RURAL, | LOT 15 SKYLINE MEADOW ESTATES |
| 37144 | 13375 NW RD A.5
EPHRATA RURAL, | LOT 16 SKYLINE MEADOW ESTATES |
| 37145 | 13297 NW RD A.5
EPHRATA RURAL, | LOT 17 SKYLINE MEADOW ESTATES |
| 37146 | 13211 NW RD A.5
EPHRATA RURAL, | LOT 18 SKYLINE MEADOW ESTATES |
| 37147 | 13129 NW RD A.5
EPHRATA RURAL, | LOT 19 SKYLINE MEADOW ESTATES |
| 37148 | 13045 NW RD A.5
EPHRATA RURAL, | LOT 20 SKYLINE MEADOW ESTATES |
| 37149 | 13028 NW RD A.5
EPHRATA RURAL, | LOT 21 SKYLINE MEADOW ESTATES |
| 37153 | 1508 NW RD 13.25 | LOT 25 SKYLINE MEADOW ESTATES |
| 37155 | 13382 NW RD A.5
EPHRATA RURAL, | LOT 27 SKYLINE MEADOW ESTATES |
| 37160 | | LOT 32 SKYLINE MEADOW ESTATES |
|