Property
Account |
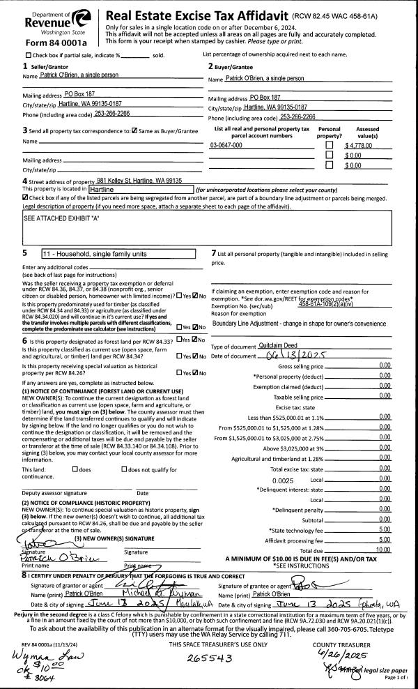
| Property ID: | 6466 | Abbreviated Legal Description: | Lot 1 Block 1 Hills First Addition to Hartline |
| Parcel # / Geo ID: | 030647000 | Agent Code: | |
| Type: | Real | | |
| Tax Area: | 0011 - HARTLINE AREA | Land Use Code | - |
| Open Space: | N | DFL | N |
| Historic Property: | N | Remodel Property: | N |
| Multi-Family Redevelopment: | N | | |
| Township: | | Section: | |
| Range: | | Legal Acres: | 0.0000 |
Location |
| Address: | 981 KELLEY ST HARTLINE, | Mapsco: | |
| Neighborhood: | 210100 | Map ID: | |
| Neighborhood CD: | 3419 |
Owner |
| Name: | O'Brien, Patrick | Owner ID: | 199243 |
| Mailing Address: | PO Box 187 Hartline, WA 99135-0187 | % Ownership: | 100.0000000000% |
| | | Exemptions: | |
Taxes and Assessment Details
Property Tax Information as of
02/02/2026
Click on "Statement Details" to expand or collapse a tax statement.
* Please enter a valid date ** Please enter a valid date *
Statement Details |
| | TOTAL: | $0.00 | $0.00 | $0.00 | $0.00 | $0.00 | $0.00 |
|
| | $0.00 | $0.00 | $0.00 | $0.00 | $0.00 | $0.00 |
Values
| (+) Improvement Homesite Value: | + | N/A | |
| (+) Improvement Non-Homesite Value: | + | N/A | |
| (+) Land Homesite Value: | + | N/A | |
| (+) Land Non-Homesite Value: | + | N/A | Ag / Timber Use Value |
| (+) Curr Use (HS): | + | N/A | N/A |
| (+) Curr Use (NHS): | + | N/A | N/A |
| | | -------------------------- | |
| (=) Market Value: | = | N/A | |
| (–) Productivity Loss: | – | N/A | |
| | | -------------------------- | |
| (=) Subtotal: | = | N/A | |
| (+) Senior Appraised Value: | + | N/A | |
| (+) Non-Senior Appraised Value: | + | N/A | |
| | | -------------------------- | |
| (=) Total Appraised Value: | = | N/A | |
| (–) Senior Exemption Loss: | – | N/A | |
| (–) Exemption Loss: | – | N/A | |
| | | -------------------------- | |
| (=) Taxable Value: | = | N/A | |
Taxing Jurisdiction
| Owner: | O'Brien, Patrick | | |
| % Ownership: | 100.0000000000% | | |
| Total Value: | N/A | | |
| Tax Area: | 0011 - HARTLINE AREA |
| CEM3 | Cemetery 3 | N/A | N/A | N/A | N/A | | |
| HARTLINE | Hartline | N/A | N/A | N/A | N/A | | |
| CTYCE | County Current Expense | N/A | N/A | N/A | N/A | | |
| MHEALTH | Mental Health | N/A | N/A | N/A | N/A | | |
| VETERANS | Veterans Relief Fund | N/A | N/A | N/A | N/A | | |
| FIRE06 | Fire 06 | N/A | N/A | N/A | N/A | | |
| HOS06 | Hospital 06 | N/A | N/A | N/A | N/A | | |
| HOS06BD | Hospital 06 - Bond | N/A | N/A | N/A | N/A | | |
| PORT05 | Port 05 | N/A | N/A | N/A | N/A | | |
| SD151 | School 151 Coulee/Hartline | N/A | N/A | N/A | N/A | | |
| SD151BD | School 151 Coulee/Hartline - Bond | N/A | N/A | N/A | N/A | | |
| STATE1 | State School - Pt 1 | N/A | N/A | N/A | N/A | | |
| STATE2 | State School - Pt 2 | N/A | N/A | N/A | N/A | | |
| STATEREF | State School Refund | N/A | N/A | N/A | N/A | | |
| | Total Tax Rate: | N/A | | | | | |
| | | | | Taxes w/Current Exemptions: | N/A | | |
| | | | | Taxes w/o Exemptions: | N/A | | |
Improvement / Building
Sketch
| No sketches available for this property. |
Property Image
Land
| 1 | HRES | HRes | 0.0000 | 0.00 | 0.00 | 0.00 | 7.00 | N/A | N/A |
Roll Value History
| 2026 | N/A | N/A | N/A | N/A | N/A |
| 2025 | $0 | $1,593 | $0 | $1,593 | $1,593 |
| 2024 | $0 | $4,778 | $0 | $4,778 | $4,778 |
| 2023 | $0 | $4,778 | $0 | $4,778 | $4,778 |
| 2022 | $0 | $4,778 | $0 | $4,778 | $4,778 |
| 2021 | $500 | $11,753 | $0 | $12,253 | $12,253 |
| 2020 | $500 | $11,753 | $0 | $12,253 | $12,253 |
| 2019 | $500 | $11,753 | $0 | $12,253 | $12,253 |
| 2018 | $500 | $11,753 | $0 | $12,253 | $12,253 |
| 2017 | $500 | $11,755 | $0 | $0 | $0 |
| 2016 | $500 | $18,450 | $0 | $0 | $0 |
| 2015 | $500 | $8,065 | $0 | $0 | $0 |
| 2014 | $500 | $8,065 | $0 | $0 | $0 |
| 2013 | $500 | $8,065 | $0 | $0 | $0 |
| 2012 | $9,610 | $8,065 | $0 | $0 | $0 |
Deed and Sales History
| 1 | 06/13/2025 | QCD/BLA | Quit Claim Deed/Boundary Line Adjustment | O'Brien, Patrick | O'Brien, Patrick | | | $0.00 | 265543 | 1513660 |
| 2 | 04/12/2011 | SWD | Statutory Warranty Deed | Larson, Joe | O'Brien, Patrick | | | $7,100.00 | 207446 | 1285777 |
| 3 | 12/08/2005 | TREA | TREA | Grant County Treasurer | LARSON, JOE | | | $15,500.00 | 200518396 | V: 0 Pg 0 |
| 4 | 08/01/1983 | LC | LC | | HOOD, CAROL K | | | $20,000.00 | 198309402 | V: 436 Pg 475 |
|   | |
| 5 | 04/01/1981 | QC | QC | | Unknown buyer | | | $1.00 | 198108697 | V: 358 Pg 597 |
| 6 | 05/01/1973 | Warranty D | Warranty D | | BARNES, E ROSS/JUDY S | | | $3,500.00 | 197305920 | V: 128 Pg 170 |
Payout Agreement
| No payout information available.. |