Property
Account |
| Property ID: | 47623 | Abbreviated Legal Description: | SESW 32 21 27 |
| Parcel # / Geo ID: | 161825003 | Agent Code: | |
| Type: | Real | | |
| Tax Area: | 0093 - EPHRATA RURAL AREA | Land Use Code | - |
| Open Space: | N | DFL | N |
| Historic Property: | N | Remodel Property: | N |
| Multi-Family Redevelopment: | N | | |
| Township: | | Section: | |
| Range: | | Legal Acres: | 37.8800 |
Location |
| Address: | | Mapsco: | |
| Neighborhood: | 179902 | Map ID: | |
| Neighborhood CD: | 3409 |
Owner |
| Name: | RFC Renewable LLC | Owner ID: | 407581 |
| Mailing Address: | PO Box 838 Medina, WA 98039 | % Ownership: | 100.0000000000% |
| | | Exemptions: | |
Taxes and Assessment Details
Property Tax Information as of
02/02/2026
Click on "Statement Details" to expand or collapse a tax statement.
* Please enter a valid date ** Please enter a valid date *
Statement Details |
| | TOTAL: | $0.00 | $0.00 | $0.00 | $0.00 | $0.00 | $0.00 |
|
| | $0.00 | $0.00 | $0.00 | $0.00 | $0.00 | $0.00 |
Values
| (+) Improvement Homesite Value: | + | N/A | |
| (+) Improvement Non-Homesite Value: | + | N/A | |
| (+) Land Homesite Value: | + | N/A | |
| (+) Land Non-Homesite Value: | + | N/A | Ag / Timber Use Value |
| (+) Curr Use (HS): | + | N/A | N/A |
| (+) Curr Use (NHS): | + | N/A | N/A |
| | | -------------------------- | |
| (=) Market Value: | = | N/A | |
| (–) Productivity Loss: | – | N/A | |
| | | -------------------------- | |
| (=) Subtotal: | = | N/A | |
| (+) Senior Appraised Value: | + | N/A | |
| (+) Non-Senior Appraised Value: | + | N/A | |
| | | -------------------------- | |
| (=) Total Appraised Value: | = | N/A | |
| (–) Senior Exemption Loss: | – | N/A | |
| (–) Exemption Loss: | – | N/A | |
| | | -------------------------- | |
| (=) Taxable Value: | = | N/A | |
Taxing Jurisdiction
| Owner: | RFC Renewable LLC | | |
| % Ownership: | 100.0000000000% | | |
| Total Value: | N/A | | |
| Tax Area: | 0093 - EPHRATA RURAL AREA |
| CTYCE | County Current Expense | N/A | N/A | N/A | N/A | | |
| MHEALTH | Mental Health | N/A | N/A | N/A | N/A | | |
| VETERANS | Veterans Relief Fund | N/A | N/A | N/A | N/A | | |
| FIRE13 | Fire 13 | N/A | N/A | N/A | N/A | | |
| HOS03 | Hospital 03 | N/A | N/A | N/A | N/A | | |
| HOS395GO | Hospital 03 - Bond | N/A | N/A | N/A | N/A | | |
| LIBRARY | Library | N/A | N/A | N/A | N/A | | |
| PORT09 | Port 09 | N/A | N/A | N/A | N/A | | |
| ROADS | Roads | N/A | N/A | N/A | N/A | | |
| SD165 | School 165 Ephrata | N/A | N/A | N/A | N/A | | |
| SD165BD | School 165 Ephrata - Bond | N/A | N/A | N/A | N/A | | |
| SD165CP | School 165 Ephrata - Cap Project
| N/A | N/A | N/A | N/A | | |
| SD165TRANS | School 165 Ephrata - Transportation
| N/A | N/A | N/A | N/A | | |
| STATE1 | State School - Pt 1 | N/A | N/A | N/A | N/A | | |
| STATE2 | State School - Pt 2 | N/A | N/A | N/A | N/A | | |
| STATEREF | State School Refund | N/A | N/A | N/A | N/A | | |
| | Total Tax Rate: | N/A | | | | | |
| | | | | Taxes w/Current Exemptions: | N/A | | |
| | | | | Taxes w/o Exemptions: | N/A | | |
Improvement / Building
Sketch
| No sketches available for this property. |
Property Image
Land
| 1 | EPDRYPAS-2 | Eph DryPasture 2 | 37.8800 | 1650052.80 | 0.00 | 0.00 | 0.00 | N/A | N/A |
Roll Value History
| 2026 | N/A | N/A | N/A | N/A | N/A |
| 2025 | $0 | $37,880 | $0 | $37,880 | $37,880 |
| 2024 | $0 | $30,304 | $0 | $30,304 | $30,304 |
| 2023 | $0 | $30,304 | $0 | $30,304 | $30,304 |
| 2022 | $0 | $32,198 | $0 | $32,198 | $32,198 |
| 2021 | $0 | $30,304 | $0 | $30,304 | $30,304 |
| 2020 | $0 | $18,940 | $0 | $18,940 | $18,940 |
| 2019 | $0 | $36,057 | $0 | $36,057 | $36,057 |
| 2018 | $0 | $28,410 | $0 | $28,410 | $28,410 |
| 2017 | $0 | $28,410 | $0 | $0 | $0 |
| 2016 | $0 | $28,410 | $0 | $0 | $0 |
| 2015 | $0 | $37,880 | $0 | $0 | $0 |
| 2014 | $0 | $37,880 | $0 | $0 | $0 |
| 2013 | $0 | $37,880 | $0 | $0 | $0 |
| 2012 | $0 | $37,880 | $0 | $0 | $0 |
Deed and Sales History
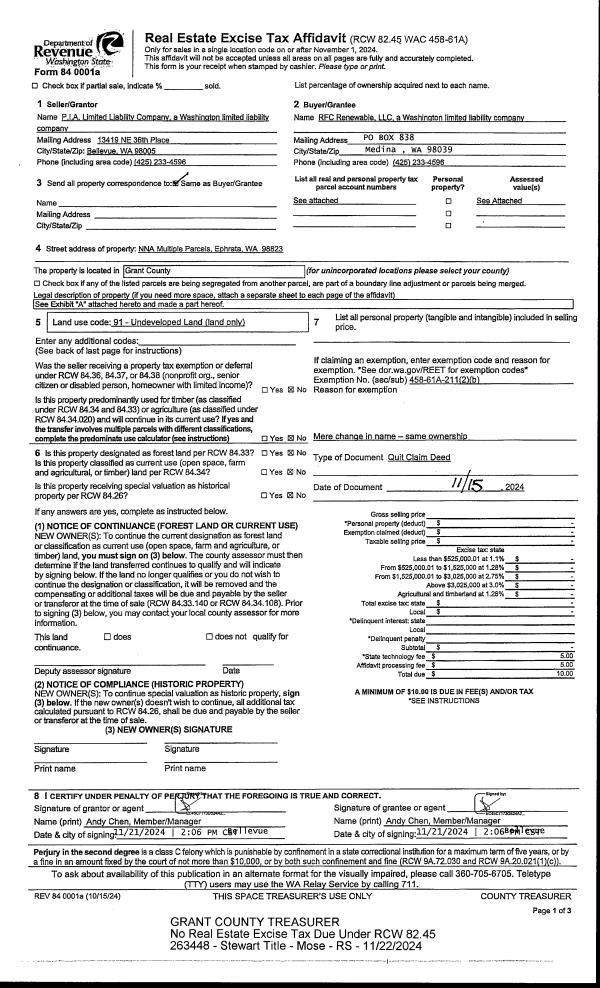
| 1 | 11/15/2024 | QCD | Quit Claim Deed | PIA LLC | RFC Renewable LLC | | | $0.00 | 263448 | 1506115 |
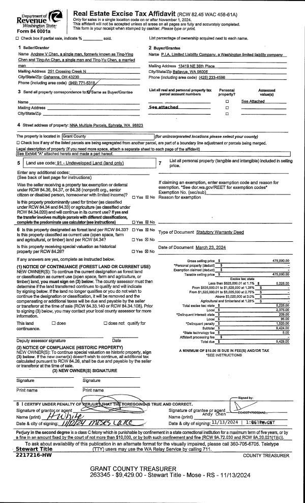
| 2 | 03/23/2024 | SWD | Statutory Warranty Deed | Chen Etal, Ting-Yu | PIA LLC | | | $475,000.00 | 263345 | 1505739 |
|   | |
| 3 | 01/21/1994 | SWD | Statutory Warranty Deed | Chen, Chin Huei & Shue Gean | Chen Etal, Ting-An | | | | 235743 | 1396582 |
| 4 | 01/21/1994 | SWD | Statutory Warranty Deed | Chen, Chin Huei & Shue Gean | Chen Etal, Ting-Ying | | | | 235743 | 1396582 |
| 5 | 01/21/1994 | SWD | Statutory Warranty Deed | Chen, Chin Huei & Shue Gean | Chen Etal, Ting-Yu | | | | 235743 | 1396582 |
| 6 | 01/21/1994 | SWD | Statutory Warranty Deed | Chen, Chin Huei & Shue Gean | Chen Etal, Ting-Yu | | | | 131799 | Rl 41 Pg 154 |
| 7 | 03/22/1993 | SWD | Statutory Warranty Deed | T D Investment, Inc | CHEN, CHIN-HUEI/SHUE GEAN | | | $35,000.00 | 199312756 | V: 26 Pg 1683 |
Payout Agreement
| No payout information available.. |