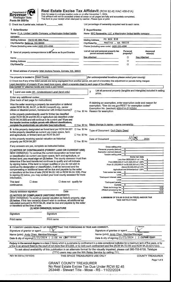
| 1 | 11/15/2024 | QCD | Quit Claim Deed | PIA LLC | RFC Renewable LLC | | | $0.00 | 263448 | 1506115 |
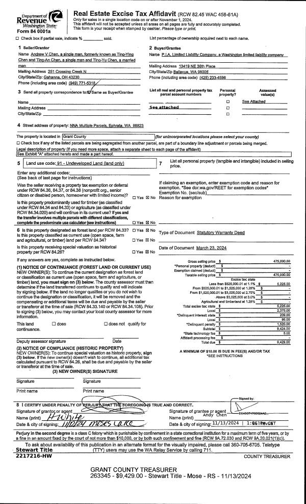
| 2 | 03/23/2024 | SWD | Statutory Warranty Deed | Chen Etal, Ting-Yu | PIA LLC | | | $475,000.00 | 263345 | 1505739 |
|   | |
| 3 | 12/29/1995 | SWD | Statutory Warranty Deed | CHEN, CHIN-HUEI/SHUE-GEAN | CHEN, TING-YU\TING-AN\TING-YING | | | $0.00 | 199514031 | V: 71 Pg 2212 |
| 4 | 03/23/1990 | WFD | Warranty Fulfillment Deed | Moses Lake Development Corp | T D Investment, Inc | | | | 0 | Bk 769 Pg 112 |
| 5 | 11/13/1989 | SWD | Statutory Warranty Deed | T D INVESTMENT INC | CHEN, CHIN-HUEI/SHUE-GEAN | | | $0.00 | 198911411 | V: 746 Pg 526 |
| 6 | 10/16/1989 | LC | LC | Moses Lake Development Corp | T D Investment, Inc | | | $584,000.00 | 113841 | Bk 743 Pg 354 |
|   | |
| 7 | 04/01/1985 | AF | AF | | Unknown buyer | | | $1.00 | 198509978 | V: 510 Pg 133 |
| 8 | 12/01/1981 | LC | LC | | EASTERLING, THEOLIA M | | | $15,900.00 | 198108933 | V: 386 Pg 693 |
| 9 | 07/01/1979 | SW | SW | | M L DEVELOPMENT | | | $0.00 | 197908183 | V: 308 Pg 520 |