Property
Account |
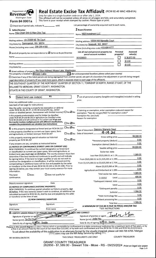
| Property ID: | 46907 | Abbreviated Legal Description: | SENE 11 20 27 |
| Parcel # / Geo ID: | 161639003 | Agent Code: | |
| Type: | Real | | |
| Tax Area: | 0088 - MOSES LAKE RURAL AREA | Land Use Code | - |
| Open Space: | N | DFL | N |
| Historic Property: | N | Remodel Property: | N |
| Multi-Family Redevelopment: | N | | |
| Township: | | Section: | |
| Range: | | Legal Acres: | 42.4200 |
Location |
| Address: | | Mapsco: | |
| Neighborhood: | 259901 | Map ID: | |
| Neighborhood CD: | 3408 |
Owner |
| Name: | N & B Investment LLC | Owner ID: | 406572 |
| Mailing Address: | 18364 NW Marseille Court Issaquah, WA 98027 | % Ownership: | 100.0000000000% |
| | | Exemptions: | |
Taxes and Assessment Details
Property Tax Information as of
02/02/2026
Click on "Statement Details" to expand or collapse a tax statement.
* Please enter a valid date ** Please enter a valid date *
Statement Details |
| | TOTAL: | $0.00 | $0.00 | $0.00 | $0.00 | $0.00 | $0.00 |
|
| | $0.00 | $0.00 | $0.00 | $0.00 | $0.00 | $0.00 |
Values
| (+) Improvement Homesite Value: | + | N/A | |
| (+) Improvement Non-Homesite Value: | + | N/A | |
| (+) Land Homesite Value: | + | N/A | |
| (+) Land Non-Homesite Value: | + | N/A | Ag / Timber Use Value |
| (+) Curr Use (HS): | + | N/A | N/A |
| (+) Curr Use (NHS): | + | N/A | N/A |
| | | -------------------------- | |
| (=) Market Value: | = | N/A | |
| (–) Productivity Loss: | – | N/A | |
| | | -------------------------- | |
| (=) Subtotal: | = | N/A | |
| (+) Senior Appraised Value: | + | N/A | |
| (+) Non-Senior Appraised Value: | + | N/A | |
| | | -------------------------- | |
| (=) Total Appraised Value: | = | N/A | |
| (–) Senior Exemption Loss: | – | N/A | |
| (–) Exemption Loss: | – | N/A | |
| | | -------------------------- | |
| (=) Taxable Value: | = | N/A | |
Taxing Jurisdiction
| Owner: | N & B Investment LLC | | |
| % Ownership: | 100.0000000000% | | |
| Total Value: | N/A | | |
| Tax Area: | 0088 - MOSES LAKE RURAL AREA |
| CTYCE | County Current Expense | N/A | N/A | N/A | N/A | | |
| MHEALTH | Mental Health | N/A | N/A | N/A | N/A | | |
| VETERANS | Veterans Relief Fund | N/A | N/A | N/A | N/A | | |
| FIRE15 | Fire 15 | N/A | N/A | N/A | N/A | | |
| HOS03 | Hospital 03 | N/A | N/A | N/A | N/A | | |
| HOS395GO | Hospital 03 - Bond | N/A | N/A | N/A | N/A | | |
| LIBRARY | Library | N/A | N/A | N/A | N/A | | |
| PORT10 | Port 10 | N/A | N/A | N/A | N/A | | |
| ROADS | Roads | N/A | N/A | N/A | N/A | | |
| SD161 | School 161 Moses Lake | N/A | N/A | N/A | N/A | | |
| SD161BD | School 161 Moses Lake - Bond | N/A | N/A | N/A | N/A | | |
| STATE1 | State School - Pt 1 | N/A | N/A | N/A | N/A | | |
| STATE2 | State School - Pt 2 | N/A | N/A | N/A | N/A | | |
| STATEREF | State School Refund | N/A | N/A | N/A | N/A | | |
| | Total Tax Rate: | N/A | | | | | |
| | | | | Taxes w/Current Exemptions: | N/A | | |
| | | | | Taxes w/o Exemptions: | N/A | | |
Improvement / Building
Sketch
| No sketches available for this property. |
Property Image
Land
| 1 | LgSA2 | Lrg SA 2 | 42.4200 | 1847815.20 | 0.00 | 0.00 | 0.00 | N/A | N/A |
Roll Value History
| 2026 | N/A | N/A | N/A | N/A | N/A |
| 2025 | $0 | $38,872 | $0 | $38,872 | $38,872 |
| 2024 | $0 | $38,872 | $0 | $38,872 | $38,872 |
| 2023 | $0 | $38,872 | $0 | $38,872 | $38,872 |
| 2022 | $0 | $42,420 | $0 | $42,420 | $42,420 |
| 2021 | $0 | $38,178 | $0 | $38,178 | $38,178 |
| 2020 | $0 | $27,573 | $0 | $27,573 | $27,573 |
| 2019 | $0 | $36,852 | $0 | $36,852 | $36,852 |
| 2018 | $0 | $15,908 | $0 | $15,908 | $15,908 |
| 2017 | $0 | $15,910 | $0 | $0 | $0 |
| 2016 | $0 | $15,910 | $0 | $0 | $0 |
| 2015 | $0 | $21,210 | $0 | $0 | $0 |
| 2014 | $0 | $21,210 | $0 | $0 | $0 |
| 2013 | $0 | $21,210 | $0 | $0 | $0 |
| 2012 | $0 | $16,970 | $0 | $0 | $0 |
Deed and Sales History
| 1 | 09/19/2024 | SWD | Statutory Warranty Deed | Shih Etal, Hsiu-Chieh | N & B Investment LLC | | | $99,000.00 | 262856 | 1503914 |
| 2 | 04/02/1990 | SWD | Statutory Warranty Deed | T.D. INVESTMENTS | TSAI ETAL, WEN-CHIN | | | $13,989.00 | 199011552 | V: 766 Pg 186 |
| 3 | 03/23/1990 | WFD | Warranty Fulfillment Deed | Moses Lake Development Corp | T D Investment, Inc | | | | 0 | Bk 769 Pg 112 |
| 4 | 10/16/1989 | LC | LC | Moses Lake Development Corp | T D Investment, Inc | | | $584,000.00 | 113841 | Bk 743 Pg 354 |
|   | |
| 5 | 11/16/1988 | Quit Claim | Quit Claim | AYERS, JAMES F/MARIE J | Moses Lake Development Corp | | | $0.00 | 198811086 | V: 699 Pg 508 |
| 6 | 07/01/1982 | LC | LC | | AYERS, JAMES F SR/MARIE J | | | $16,900.00 | 198209268 | V: 421 Pg 263 |
| 7 | 06/30/1982 | QCD | Quit Claim Deed | Fait, Newell E & Helen B | Moses Lake Development Corp | | | | 90307 | Bk 400 Pg 152 |
| 8 | 06/15/1982 | SURV | SURV | Unknown seller | Moses Lake Development Co | | | | 0 | Bk 9 Pg 74 |
Payout Agreement
| No payout information available.. |