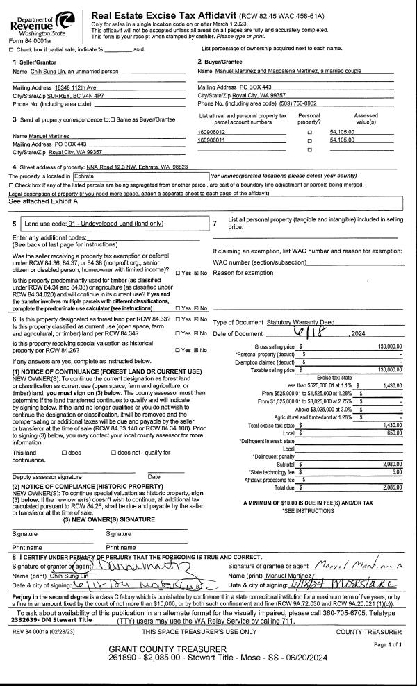
| 1 | 06/18/2024 | SWD | Statutory Warranty Deed | Lin, Chih Sung | Martinez, Manuel & Magdalena | | | $130,000.00 | 261890 | 1500582 |
|   | |
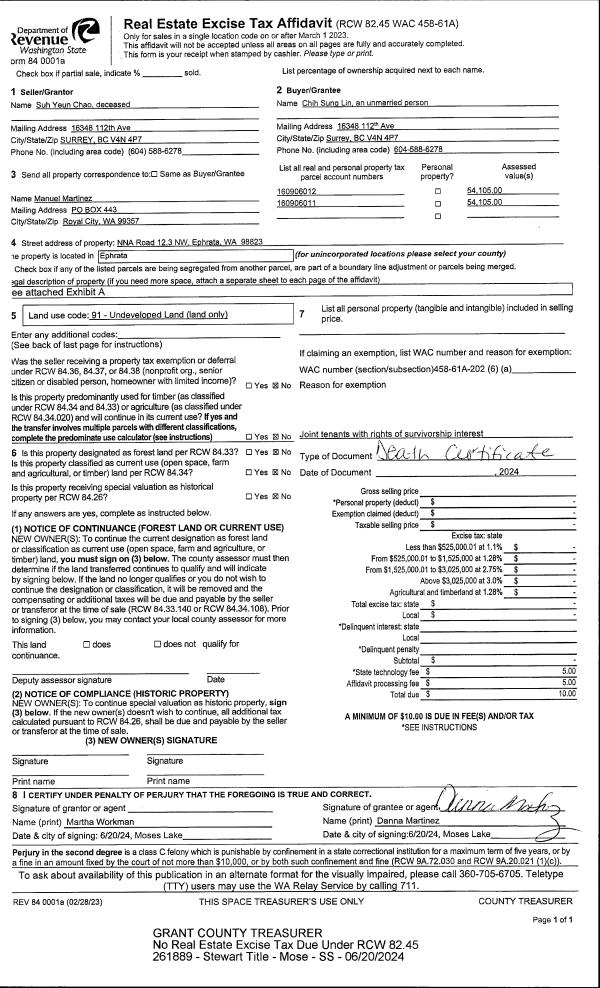
| 2 | 03/28/2023 | DC | Death Certificate | | Chao Est, Suh Yeun | | | | 0 | |
| 3 | 06/18/2024 | EXA | EXA | Chao Est, Suh Yeun | Lin, Chih Sung | | | $0.00 | 261889 | |
| 4 | 05/27/2011 | QCD | Quit Claim Deed | Chao, Suh Yeun | Chao, Suh Yeun & Chih Sung Lin | | | | 207762 | 1287133 |
| 5 | 07/13/1990 | SWD | Statutory Warranty Deed | T.D. INVESTMENT | CHAO, SUH YEUN | | | $20,000.00 | 199011683 | V: 782 Pg 489 |
|   | |
| 6 | 01/25/1990 | SWD | Statutory Warranty Deed | Moses Lake Development | ALLEN, JEFFREY/CARI | | | $0.00 | 199000000 | V: 795 Pg 136 |
| 7 | 01/25/1990 | SWD | Statutory Warranty Deed | Moses Lake Development | Alsted, David & Susan | | | $0.00 | 199000000 | V: 795 Pg 136 |
| 8 | 01/25/1990 | SWD | Statutory Warranty Deed | Moses Lake Development | Anderson, Max M & Rhonda K | | | $0.00 | 199000000 | V: 795 Pg 136 |
| 9 | 01/25/1990 | SWD | Statutory Warranty Deed | Moses Lake Development | ASHBY, RICHARD | | | $0.00 | 199000000 | V: 795 Pg 136 |
| 10 | 01/25/1990 | SWD | Statutory Warranty Deed | Moses Lake Development | ASTRO ENTERPRISES TRUST | | | $0.00 | 199000000 | V: 795 Pg 136 |
| 11 | 01/25/1990 | SWD | Statutory Warranty Deed | Moses Lake Development | Bise, Henry A & Betty L | | | $0.00 | 199000000 | V: 795 Pg 136 |
| 12 | 01/25/1990 | SWD | Statutory Warranty Deed | Moses Lake Development | Brossoit, Arthur & Shirley | | | $0.00 | 199000000 | V: 795 Pg 136 |
| 13 | 01/25/1990 | SWD | Statutory Warranty Deed | Moses Lake Development | BROWN, LEE M/SHIRLEY G | | | $0.00 | 199000000 | V: 795 Pg 136 |
| 14 | 01/25/1990 | SWD | Statutory Warranty Deed | Moses Lake Development | BROWN, MIKE AND GIUS LC/MARGARET | | | $0.00 | 199000000 | V: 795 Pg 136 |
| 15 | 01/25/1990 | SWD | Statutory Warranty Deed | Moses Lake Development | BROWN, OTHA LEE/MARTHA P | | | $0.00 | 199000000 | V: 795 Pg 136 |
| 16 | 01/25/1990 | SWD | Statutory Warranty Deed | Moses Lake Development | BUCKINGHAM, CLAUDE | | | $0.00 | 199000000 | V: 795 Pg 136 |
| 17 | 01/25/1990 | SWD | Statutory Warranty Deed | Moses Lake Development | BUNKELMAN, LOUIS E | | | $0.00 | 199000000 | V: 795 Pg 136 |
| 18 | 01/25/1990 | SWD | Statutory Warranty Deed | Moses Lake Development | BURTON, CAROL JEAN & ARMIJO | | | $0.00 | 199000000 | V: 795 Pg 136 |
| 19 | 01/25/1990 | SWD | Statutory Warranty Deed | Moses Lake Development | CASTILLO, JOSE ANGEL C ET AL | | | $0.00 | 199000000 | V: 795 Pg 136 |
| 20 | 01/25/1990 | SWD | Statutory Warranty Deed | Moses Lake Development | CHAVEZ, LUPE/EULALIO | | | $0.00 | 199000000 | V: 795 Pg 136 |
| 21 | 01/25/1990 | SWD | Statutory Warranty Deed | Moses Lake Development | CHEN ETAL, LIN LIH HWA | | | $0.00 | 199000000 | V: 795 Pg 136 |
| 22 | 01/25/1990 | SWD | Statutory Warranty Deed | Moses Lake Development | CHEN, JOHN\TOM & BOBBY | | | $0.00 | 199000000 | V: 795 Pg 136 |
| 23 | 01/25/1990 | SWD | Statutory Warranty Deed | Moses Lake Development | CLA ASSOCIATES INC | | | $0.00 | 199000000 | V: 795 Pg 136 |
| 24 | 01/25/1990 | SWD | Statutory Warranty Deed | Moses Lake Development | CLOSE, BARBARA A | | | $0.00 | 199000000 | V: 795 Pg 136 |
| 25 | 01/25/1990 | SWD | Statutory Warranty Deed | Moses Lake Development | CONVERSE, CECILE R | | | $0.00 | 199000000 | V: 795 Pg 136 |
| 26 | 01/25/1990 | SWD | Statutory Warranty Deed | Moses Lake Development | COOLS, DANIEL J/DEBRA | | | $0.00 | 199000000 | V: 795 Pg 136 |
| 27 | 01/25/1990 | SWD | Statutory Warranty Deed | Moses Lake Development | Cotton, Harold J | | | $0.00 | 199000000 | V: 795 Pg 136 |
| 28 | 01/25/1990 | SWD | Statutory Warranty Deed | Moses Lake Development | COX, STEVE/MARY | | | $0.00 | 199000000 | V: 795 Pg 136 |
| 29 | 01/25/1990 | SWD | Statutory Warranty Deed | Moses Lake Development | CRAFT, DAVID/MARKITA | | | $0.00 | 199000000 | V: 795 Pg 136 |
| 30 | 01/25/1990 | SWD | Statutory Warranty Deed | Moses Lake Development | Curtright, Larry D & Paula F | | | $0.00 | 199000000 | V: 795 Pg 136 |
| 31 | 01/25/1990 | SWD | Statutory Warranty Deed | Moses Lake Development | DAUGHRITY, RICKEY S/WANDA | | | $0.00 | 199000000 | V: 795 Pg 136 |
| 32 | 01/25/1990 | SWD | Statutory Warranty Deed | Moses Lake Development | DIJULIO, CHIP/SIGRID | | | $0.00 | 199000000 | V: 795 Pg 136 |
| 33 | 01/25/1990 | SWD | Statutory Warranty Deed | Moses Lake Development | DILLMAN, HARTLEIGH/SHIRLEY | | | $0.00 | 199000000 | V: 795 Pg 136 |
| 34 | 01/25/1990 | SWD | Statutory Warranty Deed | Moses Lake Development | DORSING, CURTIS F ET AL | | | $0.00 | 199000000 | V: 795 Pg 136 |
| 35 | 01/25/1990 | SWD | Statutory Warranty Deed | Moses Lake Development | DOYLE, LAWRENCE O/NILA C | | | $0.00 | 199000000 | V: 795 Pg 136 |
| 36 | 01/25/1990 | SWD | Statutory Warranty Deed | Moses Lake Development | DUNCAN CRANE SERVICE, INC | | | $0.00 | 199000000 | V: 795 Pg 136 |
| 37 | 01/25/1990 | SWD | Statutory Warranty Deed | Moses Lake Development | Duncan, Gordon E | | | $0.00 | 199000000 | V: 795 Pg 136 |
| 38 | 01/25/1990 | SWD | Statutory Warranty Deed | Moses Lake Development | ELLIOT, MILDRED | | | $0.00 | 199000000 | V: 795 Pg 136 |
| 39 | 01/25/1990 | SWD | Statutory Warranty Deed | Moses Lake Development | EVANS, WILLIAM G/JEANNETTE M | | | $0.00 | 199000000 | V: 795 Pg 136 |
| 40 | 01/25/1990 | SWD | Statutory Warranty Deed | Moses Lake Development | FARAG, SOULY/VIVIAN & FARAG NABIL/SONIA | | | $0.00 | 199000000 | V: 795 Pg 136 |
| 41 | 01/25/1990 | SWD | Statutory Warranty Deed | Moses Lake Development | FAROOK, JANICE L | | | $0.00 | 199000000 | V: 795 Pg 136 |
| 42 | 01/25/1990 | SWD | Statutory Warranty Deed | Moses Lake Development | FIREBAUGH, DAVID W | | | $0.00 | 199000000 | V: 795 Pg 136 |
| 43 | 01/25/1990 | SWD | Statutory Warranty Deed | Moses Lake Development | FISCHER, JERRY/GERALDINE | | | $0.00 | 199000000 | V: 795 Pg 136 |
| 44 | 01/25/1990 | SWD | Statutory Warranty Deed | Moses Lake Development | GIBSON, MICHAEL D ET AL | | | $0.00 | 199000000 | V: 795 Pg 136 |
| 45 | 01/25/1990 | SWD | Statutory Warranty Deed | Moses Lake Development | GILLILAND, VICTOR C/DIANE M | | | $0.00 | 199000000 | V: 795 Pg 136 |
| 46 | 01/25/1990 | SWD | Statutory Warranty Deed | Moses Lake Development | GLEASON, JUDITH L & BIRDWELL EDNA ETAL | | | $0.00 | 199000000 | V: 795 Pg 136 |
| 47 | 01/25/1990 | SWD | Statutory Warranty Deed | Moses Lake Development | GODDEN, LARRY S/SHEILA P | | | $0.00 | 199000000 | V: 795 Pg 136 |
| 48 | 01/25/1990 | SWD | Statutory Warranty Deed | Moses Lake Development | GRANT, STACY B/KARLA\BOYD V/FRANCIS K | | | $0.00 | 199000000 | V: 795 Pg 136 |
| 49 | 01/25/1990 | SWD | Statutory Warranty Deed | Moses Lake Development | GRAY, JOE DON/DEBBIE | | | $0.00 | 199000000 | V: 795 Pg 136 |
| 50 | 01/25/1990 | SWD | Statutory Warranty Deed | Moses Lake Development | Grigg, Lorin A & Roberta J | | | $0.00 | 199000000 | V: 795 Pg 136 |
| 51 | 01/25/1990 | SWD | Statutory Warranty Deed | Moses Lake Development | GWINN, G. WELDON/L. PAULINE | | | $0.00 | 199000000 | V: 795 Pg 136 |
| 52 | 01/25/1990 | SWD | Statutory Warranty Deed | Moses Lake Development | GWYNN, STEPHEN N/JANN W | | | $0.00 | 199000000 | V: 795 Pg 136 |
| 53 | 01/25/1990 | SWD | Statutory Warranty Deed | Moses Lake Development | HARRISON, CHRISTOPHER L/LAURIE L | | | $0.00 | 199000000 | V: 795 Pg 136 |
| 54 | 01/25/1990 | SWD | Statutory Warranty Deed | Moses Lake Development | Harvey, Susan K | | | $0.00 | 199000000 | V: 795 Pg 136 |
| 55 | 01/25/1990 | SWD | Statutory Warranty Deed | Moses Lake Development | Holloway Etal, Robert W & Agnes R | | | $0.00 | 199000000 | V: 795 Pg 136 |
| 56 | 01/25/1990 | SWD | Statutory Warranty Deed | Moses Lake Development | HOLLOWAY, ROBERT/AGNES R & GRIGG LORIN | | | $0.00 | 199000000 | V: 795 Pg 136 |
| 57 | 01/25/1990 | SWD | Statutory Warranty Deed | Moses Lake Development | HORST, LOREN L/DARLENE J | | | $0.00 | 199000000 | V: 795 Pg 136 |
| 58 | 01/25/1990 | SWD | Statutory Warranty Deed | Moses Lake Development | Hunt, Terry & Mary | | | $0.00 | 199000000 | V: 795 Pg 136 |
| 59 | 01/25/1990 | SWD | Statutory Warranty Deed | Moses Lake Development | ISAACSON, GILES J/MARIAN E | | | $0.00 | 199000000 | V: 795 Pg 136 |
| 60 | 01/25/1990 | SWD | Statutory Warranty Deed | Moses Lake Development | JACKSON, ANNETTIA K | | | $0.00 | 199000000 | V: 795 Pg 136 |
| 61 | 01/25/1990 | SWD | Statutory Warranty Deed | Moses Lake Development | JALALI, HOSSEIN/SHAHLA RAHMANIFARD | | | $0.00 | 199000000 | V: 795 Pg 136 |
| 62 | 01/25/1990 | SWD | Statutory Warranty Deed | Moses Lake Development | JENNINGS, MARK | | | $0.00 | 199000000 | V: 795 Pg 136 |
| 63 | 01/25/1990 | SWD | Statutory Warranty Deed | Moses Lake Development | JIMENEZ, BENJAMIN V/MARIA | | | $0.00 | 199000000 | V: 795 Pg 136 |
| 64 | 01/25/1990 | SWD | Statutory Warranty Deed | Moses Lake Development | JONES ETAL, MIKE | | | $0.00 | 199000000 | V: 795 Pg 136 |
| 65 | 01/25/1990 | SWD | Statutory Warranty Deed | Moses Lake Development | Jones, Ronald T & Gwendolyn G | | | $0.00 | 199000000 | V: 795 Pg 136 |
| 66 | 01/25/1990 | SWD | Statutory Warranty Deed | Moses Lake Development | KEMANORD CORP (EKA NOBEL INC) | | | $0.00 | 199000000 | V: 795 Pg 136 |
| 67 | 01/25/1990 | SWD | Statutory Warranty Deed | Moses Lake Development | KEMP, DOUGLAS L/VERN EVELYN | | | $0.00 | 199000000 | V: 795 Pg 136 |
| 68 | 01/25/1990 | SWD | Statutory Warranty Deed | Moses Lake Development | Killinger, Peter R | | | $0.00 | 199000000 | V: 795 Pg 136 |
| 69 | 01/25/1990 | SWD | Statutory Warranty Deed | Moses Lake Development | KOONTZ, GARY R | | | $0.00 | 199000000 | V: 795 Pg 136 |
| 70 | 01/25/1990 | SWD | Statutory Warranty Deed | Moses Lake Development | KUCH, PHYLLIS L | | | $0.00 | 199000000 | V: 795 Pg 136 |
| 71 | 01/25/1990 | SWD | Statutory Warranty Deed | Moses Lake Development | Larson, Winnie C | | | $0.00 | 199000000 | V: 795 Pg 136 |
| 72 | 01/25/1990 | SWD | Statutory Warranty Deed | Moses Lake Development | LEATHAM, RONALD A/BRENDIA J | | | $0.00 | 199000000 | V: 795 Pg 136 |
| 73 | 01/25/1990 | SWD | Statutory Warranty Deed | Moses Lake Development | LEGAULT, FRED/LORETTA | | | $0.00 | 199000000 | V: 795 Pg 136 |
| 74 | 01/25/1990 | SWD | Statutory Warranty Deed | Moses Lake Development | LEOTA, JOSEPH/BOBBIE | | | $0.00 | 199000000 | V: 795 Pg 136 |
| 75 | 01/25/1990 | SWD | Statutory Warranty Deed | Moses Lake Development | LESLIE, WADE/TRISH ANNE | | | $0.00 | 199000000 | V: 795 Pg 136 |
| 76 | 01/25/1990 | SWD | Statutory Warranty Deed | Moses Lake Development | LONG, C W/CATHERINE | | | $0.00 | 199000000 | V: 795 Pg 136 |
| 77 | 01/25/1990 | SWD | Statutory Warranty Deed | Moses Lake Development | LUCAS, JAMES C/NEMAGENE | | | $0.00 | 199000000 | V: 795 Pg 136 |
| 78 | 01/25/1990 | SWD | Statutory Warranty Deed | Moses Lake Development | Maier, Larry G & Betty Ann | | | $0.00 | 199000000 | V: 795 Pg 136 |
| 79 | 01/25/1990 | SWD | Statutory Warranty Deed | Moses Lake Development | MANDI, HASHEM SAADAT | | | $0.00 | 199000000 | V: 795 Pg 136 |
| 80 | 01/25/1990 | SWD | Statutory Warranty Deed | Moses Lake Development | MASON, MICHAEL O/RENA R | | | $0.00 | 199000000 | V: 795 Pg 136 |
| 81 | 01/25/1990 | SWD | Statutory Warranty Deed | Moses Lake Development | MAYRANT, JIM/RUTH | | | $0.00 | 199000000 | V: 795 Pg 136 |
| 82 | 01/25/1990 | SWD | Statutory Warranty Deed | Moses Lake Development | Milbrandt, Jerry | | | $0.00 | 199000000 | V: 795 Pg 136 |
| 83 | 01/25/1990 | SWD | Statutory Warranty Deed | Moses Lake Development | MOLINE, PAUL H/SHIRLEY I | | | $0.00 | 199000000 | V: 795 Pg 136 |
| 84 | 01/25/1990 | SWD | Statutory Warranty Deed | Moses Lake Development | MOLITOR, MICHAEL P | | | $0.00 | 199000000 | V: 795 Pg 136 |
| 85 | 01/25/1990 | SWD | Statutory Warranty Deed | Moses Lake Development | MOORE, J DOUGLAS/DEBORAH KAY | | | $0.00 | 199000000 | V: 795 Pg 136 |
| 86 | 01/25/1990 | SWD | Statutory Warranty Deed | Moses Lake Development | NORTHWEST DISTRICT COUNCIL OF ASSEMB GOD | | | $0.00 | 199000000 | V: 795 Pg 136 |
| 87 | 01/25/1990 | SWD | Statutory Warranty Deed | Moses Lake Development | O'Konek, David R & Cheryl E | | | $0.00 | 199000000 | V: 795 Pg 136 |
| 88 | 01/25/1990 | SWD | Statutory Warranty Deed | Moses Lake Development | O'NEAL, KAREN M | | | $0.00 | 199000000 | V: 795 Pg 136 |
| 89 | 01/25/1990 | SWD | Statutory Warranty Deed | Moses Lake Development | OHL, DANNY L ET AL | | | $0.00 | 199000000 | V: 795 Pg 136 |
| 90 | 01/25/1990 | SWD | Statutory Warranty Deed | Moses Lake Development | OTT, ARCHIE H/JUDY A | | | $0.00 | 199000000 | V: 795 Pg 136 |
| 91 | 01/25/1990 | SWD | Statutory Warranty Deed | Moses Lake Development | PICKENS, ROBERT M/MYRNA M | | | $0.00 | 199000000 | V: 795 Pg 136 |
| 92 | 01/25/1990 | SWD | Statutory Warranty Deed | Moses Lake Development | PORT DISTRICT NO 9 | | | $0.00 | 199000000 | V: 795 Pg 136 |
| 93 | 01/25/1990 | SWD | Statutory Warranty Deed | Moses Lake Development | PRICE, A/LYN/TERRI J | | | $0.00 | 199000000 | V: 795 Pg 136 |
| 94 | 01/25/1990 | SWD | Statutory Warranty Deed | Moses Lake Development | PROVOST, WILLIAM F/DOLORES V | | | $0.00 | 199000000 | V: 795 Pg 136 |
| 95 | 01/25/1990 | SWD | Statutory Warranty Deed | Moses Lake Development | PUD # 2 GRANT COUNTY | | | $0.00 | 199000000 | V: 795 Pg 136 |
| 96 | 01/25/1990 | SWD | Statutory Warranty Deed | Moses Lake Development | RAHMATULLA, OMID | | | $0.00 | 199000000 | V: 795 Pg 136 |
| 97 | 01/25/1990 | SWD | Statutory Warranty Deed | Moses Lake Development | RAMIREZ, DAVID S & FARIAS EMMA | | | $0.00 | 199000000 | V: 795 Pg 136 |
| 98 | 01/25/1990 | SWD | Statutory Warranty Deed | Moses Lake Development | RAMSAY, TODD/SONJA | | | $0.00 | 199000000 | V: 795 Pg 136 |
| 99 | 01/25/1990 | SWD | Statutory Warranty Deed | Moses Lake Development | Retallic, Richard R & Jean C | | | $0.00 | 199000000 | V: 795 Pg 136 |
| 100 | 01/25/1990 | SWD | Statutory Warranty Deed | Moses Lake Development | RICH, LOWELL THAYNE/ELIZABETH C | | | $0.00 | 199000000 | V: 795 Pg 136 |
| 101 | 01/25/1990 | SWD | Statutory Warranty Deed | Moses Lake Development | ROSE, HENRY/JOYCE | | | $0.00 | 199000000 | V: 795 Pg 136 |
| 102 | 01/25/1990 | SWD | Statutory Warranty Deed | Moses Lake Development | RUSHTON, BRADLEY/JO ANN | | | $0.00 | 199000000 | V: 795 Pg 136 |
| 103 | 01/25/1990 | SWD | Statutory Warranty Deed | Moses Lake Development | SACKMANN, SIDNEY/DEBRA | | | $0.00 | 199000000 | V: 795 Pg 136 |
| 104 | 01/25/1990 | SWD | Statutory Warranty Deed | Moses Lake Development | SCHMIDT, ART W/LOIS F\CARL L/ETTA L | | | $0.00 | 199000000 | V: 795 Pg 136 |
| 105 | 01/25/1990 | SWD | Statutory Warranty Deed | Moses Lake Development | SCHUCHMAN, LARI R | | | $0.00 | 199000000 | V: 795 Pg 136 |
| 106 | 01/25/1990 | SWD | Statutory Warranty Deed | Moses Lake Development | SELLERS, EDWARD S/NANCY J | | | $0.00 | 199000000 | V: 795 Pg 136 |
| 107 | 01/25/1990 | SWD | Statutory Warranty Deed | Moses Lake Development | Seton, Donald A | | | $0.00 | 199000000 | V: 795 Pg 136 |
| 108 | 01/25/1990 | SWD | Statutory Warranty Deed | Moses Lake Development | SEVERSON, RICHARD DEAN/MARCELLA ANN | | | $0.00 | 199000000 | V: 795 Pg 136 |
| 109 | 01/25/1990 | SWD | Statutory Warranty Deed | Moses Lake Development | SKANE, DOUGLAS/VICKY | | | $0.00 | 199000000 | V: 795 Pg 136 |
| 110 | 01/25/1990 | SWD | Statutory Warranty Deed | Moses Lake Development | SKINNER, MICHAEL D/DEBRA KAYE | | | $0.00 | 199000000 | V: 795 Pg 136 |
| 111 | 01/25/1990 | SWD | Statutory Warranty Deed | Moses Lake Development | STANLEY, RANDY/MELANIE I | | | $0.00 | 199000000 | V: 795 Pg 136 |
| 112 | 01/25/1990 | SWD | Statutory Warranty Deed | Moses Lake Development | Steinkirchner, James E & Estelle W | | | $0.00 | 199000000 | V: 795 Pg 136 |
| 113 | 01/25/1990 | SWD | Statutory Warranty Deed | Moses Lake Development | STEWART, IAN G/L MARLENE | | | $0.00 | 199000000 | V: 795 Pg 136 |
| 114 | 01/25/1990 | SWD | Statutory Warranty Deed | Moses Lake Development | STOCKMAN, DOUGLAS A/CINDY A | | | $0.00 | 199000000 | V: 795 Pg 136 |
| 115 | 01/25/1990 | SWD | Statutory Warranty Deed | Moses Lake Development | SWAN, ROD D/BETTY B ETAL | | | $0.00 | 199000000 | V: 795 Pg 136 |
| 116 | 01/25/1990 | SWD | Statutory Warranty Deed | Moses Lake Development | SWANSON ETAL, ROD D/BETTY B | | | $0.00 | 199000000 | V: 795 Pg 136 |
| 117 | 01/25/1990 | SWD | Statutory Warranty Deed | Moses Lake Development | SWANSON, ROD D/BETTY B | | | $0.00 | 199000000 | V: 795 Pg 136 |
| 118 | 01/25/1990 | SWD | Statutory Warranty Deed | Moses Lake Development | SWANSON, ROD D/BETTY B ETAL | | | $0.00 | 199000000 | V: 795 Pg 136 |
| 119 | 01/25/1990 | SWD | Statutory Warranty Deed | Moses Lake Development | T.D. INVESTMENT | | | $0.00 | 199000000 | V: 795 Pg 136 |
| 120 | 01/25/1990 | SWD | Statutory Warranty Deed | Moses Lake Development | TARRANT, ARTHUR H | | | $0.00 | 199000000 | V: 795 Pg 136 |
| 121 | 01/25/1990 | SWD | Statutory Warranty Deed | Moses Lake Development | Taylor, Brian | | | $0.00 | 199000000 | V: 795 Pg 136 |
| 122 | 01/25/1990 | SWD | Statutory Warranty Deed | Moses Lake Development | TAYLOR, JAMES ROBERT/CYNTHIA L | | | $0.00 | 199000000 | V: 795 Pg 136 |
| 123 | 01/25/1990 | SWD | Statutory Warranty Deed | Moses Lake Development | THOMPSON, GREG A/JEANETTE M | | | $0.00 | 199000000 | V: 795 Pg 136 |
| 124 | 01/25/1990 | SWD | Statutory Warranty Deed | Moses Lake Development | Tindoll, Maurice Wayne & Cherie Mae | | | $0.00 | 199000000 | V: 795 Pg 136 |
| 125 | 01/25/1990 | SWD | Statutory Warranty Deed | Moses Lake Development | TOMMER, NICHOLAS A/DONNA L | | | $0.00 | 199000000 | V: 795 Pg 136 |
| 126 | 01/25/1990 | SWD | Statutory Warranty Deed | Moses Lake Development | TORMOZOVA, YURI/GALINA | | | $0.00 | 199000000 | V: 795 Pg 136 |
| 127 | 01/25/1990 | SWD | Statutory Warranty Deed | Moses Lake Development | TURNER, BLAINE K/HELEN E | | | $0.00 | 199000000 | V: 795 Pg 136 |
| 128 | 01/25/1990 | SWD | Statutory Warranty Deed | Moses Lake Development | TURNER, CHARLES L/CAROLYN V | | | $0.00 | 199000000 | V: 795 Pg 136 |
| 129 | 01/25/1990 | SWD | Statutory Warranty Deed | Moses Lake Development | VADNAIS, WAYEN L/GLENORE H ETAL | | | $0.00 | 199000000 | V: 795 Pg 136 |
| 130 | 01/25/1990 | SWD | Statutory Warranty Deed | Moses Lake Development | VAN DYKE, DARRELL/ANN | | | $0.00 | 199000000 | V: 795 Pg 136 |
| 131 | 01/25/1990 | SWD | Statutory Warranty Deed | Moses Lake Development | VETSCH, DAMON L & LEFFEL RANDY | | | $0.00 | 199000000 | V: 795 Pg 136 |
| 132 | 01/25/1990 | SWD | Statutory Warranty Deed | Moses Lake Development | WATKINS, ROY M/EDNA P | | | $0.00 | 199000000 | V: 795 Pg 136 |
| 133 | 01/25/1990 | SWD | Statutory Warranty Deed | Moses Lake Development | WIERSMA, DANIEL/DEBRA L | | | $0.00 | 199000000 | V: 795 Pg 136 |
| 134 | 01/25/1990 | SWD | Statutory Warranty Deed | Moses Lake Development | WITTE, ROCK/CINDY | | | $0.00 | 199000000 | V: 795 Pg 136 |
| 135 | 01/25/1990 | SWD | Statutory Warranty Deed | Moses Lake Development | WOLD, CORY O/NANCY M | | | $0.00 | 199000000 | V: 795 Pg 136 |
| 136 | 01/25/1990 | SWD | Statutory Warranty Deed | Moses Lake Development | WOLFE, RONALD A/KATHLEEN ANN | | | $0.00 | 199000000 | V: 795 Pg 136 |
| 137 | 01/25/1990 | SWD | Statutory Warranty Deed | Moses Lake Development | Woodworth, Michael L & Shirley M | | | $0.00 | 199000000 | V: 795 Pg 136 |
| 138 | 01/25/1990 | SWD | Statutory Warranty Deed | Moses Lake Development | WOOLFORD, DICIE M | | | $0.00 | 199000000 | V: 795 Pg 136 |
| 139 | 01/25/1990 | SWD | Statutory Warranty Deed | Moses Lake Development | YATES, DAVID R/JANICE L | | | $0.00 | 199000000 | V: 795 Pg 136 |
| 140 | 01/25/1990 | LC | LC | Moses Lake Development | T. D. INVESTMENTS | | | $316,400.00 | 199011479 | V: 756 Pg 336 |
|   | |
| 141 | 01/18/1990 | SWD | Statutory Warranty Deed | Moses Lake Development | CHAO, SUH YEUN | | | $0.00 | 199000000 | |
| 142 | 01/18/1990 | SWD | Statutory Warranty Deed | T.D. INVESTMENT | CHAO, SUH YEUN | | | $0.00 | 199000000 | |
| 143 | 05/19/1988 | QC | QC | SMITH, TODD A | Moses Lake Development Corp | | | $0.00 | 198810923 | V: 675 Pg 255 |
| 144 | 07/01/1987 | LC | LC | | Unknown buyer | | | $8,000.00 | 198710674 | V: 631 Pg 205 |