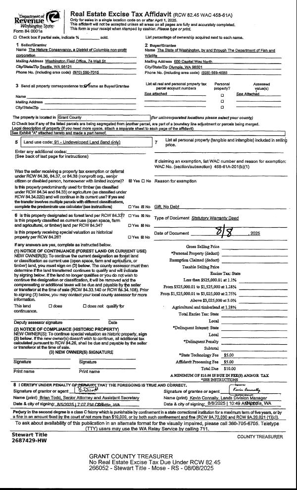
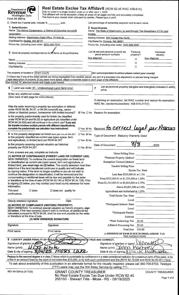
| 1 | 08/08/2025 | SWD | Statutory Warranty Deed | Nature Conservancy | State of Washington Department of Fish & Wildlife | | | $0.00 | 266160 | 1515926 |
| 2 | 08/08/2025 | SWD | Statutory Warranty Deed | Nature Conservancy | State of Washington Department of Fish & Wildlife | | | $0.00 | 266052 | 1515505 |
| 3 | 09/08/2000 | SWD | Statutory Warranty Deed | BORUFF FAMILY | NATURE CONSERVANCY | | | $321,000.00 | 200015979 | V: 0 Pg 0 |
|   | |
| 4 | 12/25/1982 | SWD | Statutory Warranty Deed | Boruff, F F & Calista | Boruff Family LLC | | | | 91650 | Bk 411 Pg 383 |
| 5 | 08/03/1956 | QCD | Quit Claim Deed | Drummond Drumheller, Edith | Drumheller Jr, Thomas J & Anna W | | | | 18940 | V 129 Pg 628 |
| 6 | 08/03/1956 | WD | Warranty Deed | Drummond Drumheller, Edith | Drumheller Jr, Thomas J & Anna W | | | $70,000.00 | 18941 | V 129 Pg 631 |
|   |
| 35261 | | SESE LS S15' 10 21 26 LESS PRAIRIE BLUFF MP'S |
| 35295 | | S1/2 LYING NLY OF R/W 25 21 26 |
| 44836 | | NESW 1 20 26 |
| 44854 | | NESW 2 20 26 |
| 44873 | | NESW 3 20 26 |
| 45397 | | E1/2 LS N30' & TAX# 12919 13 21 26 |
| 45483 | | E1/2NE LS S30' & E30' 25 21 26 |
| 45489 | | ALL SWLY OF HWY LS PLAT'S & TAX#'S 26 21 26 |
| 45496 | | E1/2 LS NLY1305' IN 27 21 26 |
| 45622 | | NENE 34 21 26 |
| 45627 | 12439 NW DODSON RD
EPHRATA RURAL, | NESW 34 21 26 |
| 45628 | 2511 NW RD 12.3
EPHRATA RURAL, | SESW 34 21 26 |
| 45671 | 12994 NW RD A | (Dircio SP) NENENE 35 21 26 |
| 46370 | 1133 NE RD 5
MOSES LAKE, | ALL 5 19 27 LEASE TO R. C. STARZMAN 7-07-16-L2063 |
| 46797 | 5010 NE RD 10
MOSES LAKE RURAL, | ALL OF SECTION 1 TOWNSHIP 20 NORTH RANGE 27 E W M GRANT COUNTY WASHINGTON EXEPT THAT PORTION MORE PARTICULARLY DESCRIBED AS FOLLOWS: A PARCEL OF LAND LOCATED IN THE SOUTHWEST QUARTER OF THE SOUTHWEST QUARTER OF SECTION 1, TOWNSHIP 20 NORTH, RANGE 27 |
| 46800 | | GOV LOT 1 3 20 27 |
| 46836 | 11975 NE NEPPEL RD
MOSES LAKE RURAL, | GOV LOT 4 4 20 27 |
| 46837 | | POR GOV LOT 5 LS CO RD 4 20 27 Government Lot 5 in Section 4, Township 20 North, Range 27 E.W.M., Grant County, Washington EXCEPTING THEREFROM that portion conveyed to the United States of America by deed recorded December 10, 1952, under Au |
| 46838 | | POR GOV LOTS 12 4 20 27 That portion of Government Lot 12, lying Westerly of "Neppel County Road" as shown on Survey recorded November 17, 1983 in Book 12 of Surveys, page 47, under Auditor's File No. 750908 AND That portion of Government |
| 46839 | | GOV LOT 11 4 20 27 |
| 46854 | | GOV LOT 2 7 20 27 |
| 46870 | | ALL E OF CREEK C/L 8 20 27 |
| 46872 | | ALL W OF CREEK C/L LS W1/2W1/2 8 20 27 |
| 46875 | 2923 NE RD 11
MOSES LAKE RURAL, | E1/2NENE 9 20 27 |
| 46884 | | SESE E OF NEPPEL RD 9 20 27 |
| 46904 | | NENE 11 20 27 |
| 46924 | | NENE 13 20 27 |
| 46947 | | ALL NELY OF HWY 15 20 27 |
| 46948 | | ALL SWLY OF HWY LS PLATS & TAX#'S 15 20 27 |
| 46952 | | N1/2NE; NW 17 20 27 |
| 46961 | 8951 N DIVISION RD
EPHRATA RURAL, | N2/3N1/2 OF GOV LOT 1 19 20 27 |
| 46994 | | ALL WEST OF LAKE 21 20 27 |
| 46998 | | POR OF NE NELY OF HWY 23 20 27 |
| 47014 | | NE NELY OF HWY 25 20 27 |
| 47016 | 7257 NE BOULDERCREST RD
MOSES LAKE RURAL, | The North half of the Southeast Quarter of the Southeast Quarter of Section 25, Township 20 North, range 27 East, Willamette Meridian in Grant County, Washington, Except... |
| 47085 | | (Prelim ML Vision MP) TX# 8185 IN SW 27 & NW 34 20 27 TAX# 8185 THE FOLLOWING DESCRIBED REAL ESTATE, SITUATED IN THE COUNTY OF GRANT, STATE OF WASHINGTON, INCLUDING ANY AFTER ACQUIRED TITLE, LISTED AS TRACT 3 OF LAKE VISTA TRACTS, MORE PARTICULARLY |
| 47146 | | E1/2 W OF LAKE LS GOV LOT 1 28 20 27 |
| 47150 | | ALL 29 20 27 |
| 47164 | | E1/2 LS TAX# 14980 31 20 27 |
| 47173 | | ALL LS NE 33 20 27 |
| 47176 | | W1/2 WLY OF LAKE 34 20 27 |
| 47179 | 3997 NE RD 6.5
MOSES LAKE RURAL, | TX# 12210 IN GOV LOT 4 34 20 27 THE EAST 214 FEET OF GOVERNMENT LOT 4 & TAX# 12210 A PORTION OF GOVERNMENT LOT 4, SECTION 34, TOWNSHIP 20 NORTH, RANGE 27 E.W.M., GRANT COUNTY, WASHINGTON, DESCRIBED AS FOLLOWS: BEGINNING AT THE EAST QUAR |
| 47273 | | NENE 3 21 27 |
| 47301 | | E1/2W1/2 LS SESW 5 21 27 |
| 47317 | | ALL E OF HWY N OF TROUT LODGE RD 7 21 27 |
| 47327 | | SWNW 8 21 27 |
| 47328 | 2787 NE RD 17
SOAP LAKE RURAL, | NENE 9 21 27 |
| 47414 | 15780 NE RD D.7
SOAP LAKE RURAL, | NENE 13 21 27 |
| 47446 | | NENE 15 21 27 |
| 47465 | | ALL 17 21 27 |
| 47479 | | ALL E OF HWY 19 21 27 |
| 47480 | | ALL W OF HWY 19 21 27 |
| 47486 | | NENE 21 21 27 |
| 47504 | | NENE 23 21 27 |
| 47532 | | NENE 25 21 27 |
| 47551 | 13769 NE RD C | NENE 27 21 27 |
| 47568 | | NWNW 28 21 27 |
| 47580 | | ALL 29 21 27 |
| 47596 | | E1/2 E OF HWY 31 21 27 |
| 47597 | | ALL W OF HWY LS TAX#'S & PIT SITE 31 21 27 |
| 47624 | | N1/2NENW 33 21 27 |
| 47647 | | NENE 35 21 27 |
|