| 1 | 11/03/2025 | QCD/BLA | Quit Claim Deed/Boundary Line Adjustment | Voth, Todd & Patty Hill | Voth, Todd & Patty Hill | | | | 267074 | 1519319 |
| 2 | 11/03/2025 | QCD/BLA | Quit Claim Deed/Boundary Line Adjustment | Voth, Todd & Patty Hill-Voth | Flores, Natividad | | | $4,500.00 | 267075 | 1519320 |
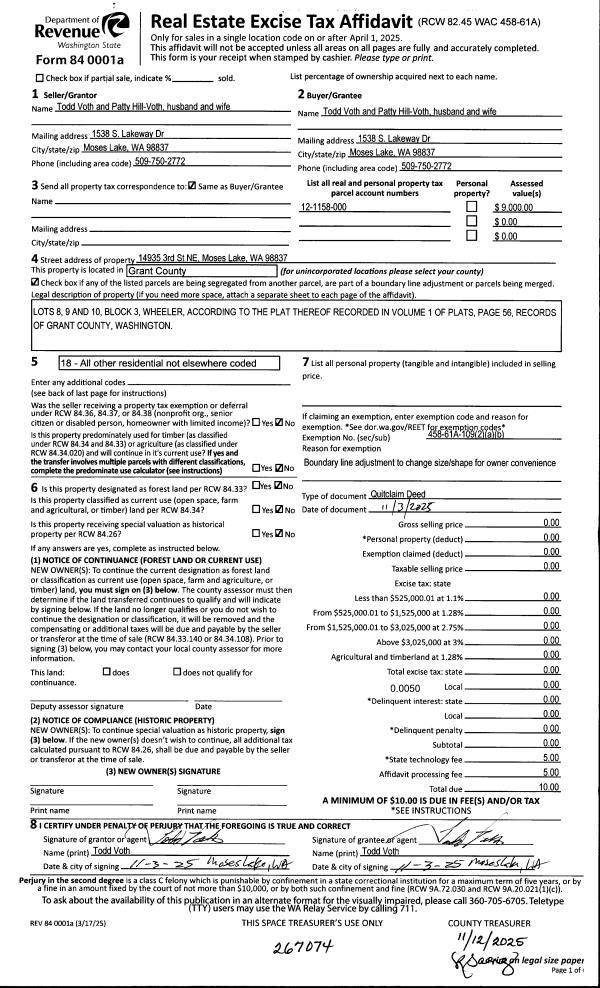
| 3 | 11/02/2025 | QCD/BLA | Quit Claim Deed/Boundary Line Adjustment | Voth, Todd & Patty Hill-Voth | Voth, Todd & Patty Hill-Voth | | | $0.00 | 267074 | 1519319 |
| 4 | 08/14/2020 | SWD | Statutory Warranty Deed | Cuda, Paula J | Voth, Todd & Patty Hill-Voth | | | $40,000.00 | 244745 | 1432150 |
|   | |
| 5 | 08/16/2018 | EXA | EXA | Cuda Est, Merle Edward | Cuda, Paula J | | | | 236090 | |
| 6 | 04/20/2018 | DC | Death Certificate | Unknown seller | Cuda Est, Merle Edward | | | | 0 | |
| 7 | 04/22/1997 | RESO | RESO | | VACATION NO. 97-58 | | | $0.00 | 199700000 | V: 0 Pg 0 |
| 8 | 02/03/1994 | SWD | Statutory Warranty Deed | WHITAKER, DORIS R | CUDA, EDWARD/PAULA J | | | $1,700.00 | 199413190 | V: 41 Pg 1100 |
|   | |
| 9 | 03/03/1976 | CPA | Community Property Agreement | Unknown seller | Cuda, M Edward & Paula J | | | | 0 | 1393960 |
| 10 | 12/10/1924 | Deed | Deed | Northwestern Improvement | Thomas Jr, Jesse O | | | $764.00 | 0 | Vol 33 Pg 198 |
|   |
| 33139 | 14968 NE 4TH ST
MOSES LAKE RURAL, | LOT 2 BLOCK 1 WHEELER |
| 33140 | 14948 NE 4TH ST
MOSES LAKE RURAL, | LOTS 3 & 4 BLOCK 1 WHEELER |
| 33141 | 14943 NE 4TH ST
MOSES LAKE RURAL, | ELY32' OF LOT 5 BLOCK 1 WHEELER |
| 33142 | | WLY18' OF LOT 5 BLOCK 1 WHEELER |
| 33143 | 14928 NE 4TH ST
MOSES LAKE RURAL, | LOT 6 BLOCK 1 WHEELER |
| 33144 | 14959 NE 4TH ST
MOSES LAKE RURAL, | LOTS 1 TO 3 BLOCK 2 WHEELER |
| 33145 | 14949 NE 4TH ST
MOSES LAKE RURAL, | LOT 4 BLOCK 2 WHEELER |
| 33146 | 14929 NE 4TH ST
MOSES LAKE RURAL, | LOTS 5 & 6 BLOCK 2 WHEELER |
| 33154 | 14955 NE 3RD ST
MOSES LAKE RURAL, | Lots 5, 6, and 7 Block 3, Wheeler, accroding to the Plat thereof recorded in Volume 1 of Plats, Page 56, records of Grant County, Washington. |
| 33157 | 14968 NE 2ND ST
MOSES LAKE RURAL, | LOTS 13 TO 15 BLOCK 3 WHEELER |
| 33158 | 14938 NE 2ND ST
MOSES LAKE RURAL, | LOTS 16 & 17 BLOCK 3 WHEELER |
| 33159 | 14928 NE 2ND ST
MOSES LAKE RURAL, | LOT 18 BLOCK 3 WHEELER |
| 33162 | 14959 NE 2ND ST
MOSES LAKE RURAL, | LOT 4 BLOCK 4 WHEELER |
| 33167 | 14865 NE 2ND ST
MOSES LAKE RURAL, | LOTS 3 TO 6 BLOCK 5 WHEELER |
| 33170 | 14881 NE 3RD ST
MOSES LAKE RURAL, | LOT 4 BLOCK 6 WHEELER |
| 33171 | 14877 NE 3RD ST
MOSES LAKE RURAL, | LOT 5 BLOCK 6 WHEELER |
| 33172 | 14871 NE 3RD ST
MOSES LAKE RURAL, | LOT 6 BLOCK 6 WHEELER |
| 33173 | 14867 NE 3RD ST
MOSES LAKE RURAL, | LOT 7 BLOCK 6 WHEELER |
| 33174 | 14861 NE 3RD ST
MOSES LAKE RURAL, | LOT 8 BLOCK 6 WHEELER |
| 33175 | 14857 NE 3RD ST
MOSES LAKE RURAL, | LOTS 9 & 10 BLOCK 6 WHEELER |
| 33176 | 14847 NE 3RD ST
MOSES LAKE RURAL, | LOT 11 BLOCK 6 WHEELER |
| 33177 | 14841 NE 3RD ST
MOSES LAKE RURAL, | LOT 12 BLOCK 6 WHEELER |
| 33182 | 14854 NE 2ND ST
MOSES LAKE RURAL, | LOT 17 BLOCK 6 WHEELER |
| 33183 | 14844 NE 2ND ST
MOSES LAKE RURAL, | LOT 18 BLOCK 6 WHEELER |
| 33184 | 14886 NE 3RD ST
MOSES LAKE RURAL, | LOTS 1 TO 18 BLOCK 7 WHEELER |
| 33185 | 14864 NE 4TH ST
MOSES LAKE RURAL, | LOTS 1 & 2 BLOCK 8 WHEELER |
| 33186 | 14874 NE 4TH ST
MOSES LAKE RURAL, | LOTS 3 & 4 BLOCK 8 WHEELER |
| 33187 | 14844 NE 4TH ST
MOSES LAKE RURAL, | LOTS 5 & 6 BLOCK 8 WHEELER |
| 33188 | 14792 NE 4TH ST
MOSES LAKE RURAL, | LOTS 1 TO 5 BLOCK 9 WHEELER |
| 33189 | 14762 NE 4TH ST
MOSES LAKE RURAL, | LOT 6 BLOCK 9 WHEELER |
| 33190 | 14791 NE 4TH ST
MOSES LAKE RURAL, | LOTS 1 TO 6 BLOCK 10 WHEELER TGW PER BLA |
| 33192 | 14803 NE 3RD ST
MOSES LAKE RURAL, | LOTS 1 TO 3 BLOCK 11 WHEELER |
| 33193 | 14773 NE 3RD ST
MOSES LAKE RURAL, | LOTS 4 TO 6 BLOCK 11 WHEELER |
| 33196 | 14812 NE 2ND ST
MOSES LAKE RURAL, | LOTS 7 & 8 BLOCK 11 WHEELER |
| 33197 | 14792 NE 2ND ST
MOSES LAKE RURAL, | LOT 9 BLOCK 11 WHEELER |
| 33198 | 14782 NE 2ND ST
MOSES LAKE RURAL, | LOT 10 BLOCK 11 WHEELER |
| 33199 | 14772 NE 2ND ST
MOSES LAKE RURAL, | LOTS 11 & 12 BLOCK 11 WHEELER |
| 53275 | 14884 NE WHEELER RD
MOSES LAKE RURAL, | TX# 253A IN SESE 16 19 29 TAX# 253A THAT PORTION OF THE SOUTHEAST QUARTER OF THE SOUTHEAST QUARTER OF SAID SECTION 16, TOWNSHIP 19, RANGE 29, SOUTH OF 1ST STREET, TOWN OF WHEELER AND WEST OF THE WESTERLY RIGHT-OF-WAY LINE OF THE NORTHERN PACIFI |
| 53280 | 14855 NE 1ST ST
MOSES LAKE RURAL, | TX# 253B 16 19 29 TAX# 253B A PORTION OF THE SOUTHEAST QUARTER OF THE SOUTHEAST QUARTER OF SECTION 16, TOWNSHIP 19 NORTH, RANGE 29 E.W.M., DESCRIBED BY METES AND BOUNDS AS FOLLOWS: COMMENCING AT THE INTERSECTION OF THE SOUTHEASTERLY LIN |
| 53282 | | TX# 254 IN SESE 16 19 29 TAX# 254 THAT PART OF THE EAST HALF OF THE SOUTHEAST QUARTER OF THE SOUTHEAST QUARTER, LYING EAST OF THE RIGHT-OF-WAY: ALL THAT PART OF THE SOUTHEAST QUARTER OF THE SOUTHEAST QUARTER OF SECTION 16, TOWNSHIP 19 NOR |
|